
Eladó 181.00 nm-es Új építésű Családi ház Hernád
Hernádon, kiváló elhelyezkedésű környéken, rendezett utcában és jó
szomszédsággal kínálunk eladásra egy új építésű családi házat, amely ideális
alapot nyújt ahhoz, hogy az új tulajdonos teljes mértékben saját ízlésére
formálja.Az ingatlan masszív beton alapra épült, korszerű Prokoncept falazattal
készült, amely kiváló hőszigetelő tulajdonságainak köszönhetően
energiatakarékos, kellemes belső klímát biztosít, emellett gyors építést és
hosszú távon alacsony fenntartási költségeket tesz lehetővé. A stabil fa
tetőszerkezetet modern, antracit szürke cserepeslemez fedés borítja, amelyhez 20
év gyártói garancia tartozik, így a tető hosszú távon is biztonságot és
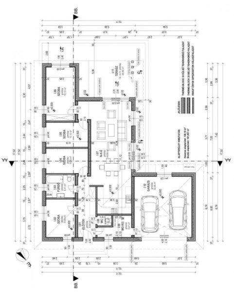
értékállóságot nyújt.A ház bruttó alapterülete 181,957 m˛, nettó 148,10 m˛,
átgondolt belső elrendezéssel. A tervek szerint négy külön nyíló szoba és egy
tágas, amerikai konyhás nappali kerül kialakításra, amely közvetlen kapcsolatban
áll a nagy méretű terasszal, így ideális helyszíne lehet családi és baráti
összejöveteleknek.A közművek közül a villany és a vezetékes víz már be van
vezetve, a szennyvíz elvezetése pedig kialakított aknával megoldott. Az épület
befejezése az új tulajdonosra vár, így lehetőség nyílik arra, hogy a fűtés, a
burkolatok, szaniterek és belső terek kialakítása teljes mértékben egyéni
elképzelés szerint történjen.Ez az ingatlan remek választás mindazok számára,
akik egy nyugodt, mégis jól megközelíthető helyen szeretnének modern otthont
kialakítani, biztos műszaki alapokra építve.Keressen bizalommal, hogy
személyesen is megmutathassam Önnek ezt a kiváló ár-érték arányú
ingatlant!Gáspár Kata
szomszédsággal kínálunk eladásra egy új építésű családi házat, amely ideális
alapot nyújt ahhoz, hogy az új tulajdonos teljes mértékben saját ízlésére
formálja.Az ingatlan masszív beton alapra épült, korszerű Prokoncept falazattal
készült, amely kiváló hőszigetelő tulajdonságainak köszönhetően
energiatakarékos, kellemes belső klímát biztosít, emellett gyors építést és
hosszú távon alacsony fenntartási költségeket tesz lehetővé. A stabil fa
tetőszerkezetet modern, antracit szürke cserepeslemez fedés borítja, amelyhez 20
év gyártói garancia tartozik, így a tető hosszú távon is biztonságot és
értékállóságot nyújt.A ház bruttó alapterülete 181,957 m˛, nettó 148,10 m˛,
átgondolt belső elrendezéssel. A tervek szerint négy külön nyíló szoba és egy
tágas, amerikai konyhás nappali kerül kialakításra, amely közvetlen kapcsolatban
áll a nagy méretű terasszal, így ideális helyszíne lehet családi és baráti
összejöveteleknek.A közművek közül a villany és a vezetékes víz már be van
vezetve, a szennyvíz elvezetése pedig kialakított aknával megoldott. Az épület
befejezése az új tulajdonosra vár, így lehetőség nyílik arra, hogy a fűtés, a
burkolatok, szaniterek és belső terek kialakítása teljes mértékben egyéni
elképzelés szerint történjen.Ez az ingatlan remek választás mindazok számára,
akik egy nyugodt, mégis jól megközelíthető helyen szeretnének modern otthont
kialakítani, biztos műszaki alapokra építve.Keressen bizalommal, hogy
személyesen is megmutathassam Önnek ezt a kiváló ár-érték arányú
ingatlant!Gáspár Kata
Részletek...
Adatlap
| Ár: | 43.500.000 Ft |
| Település: | Hernád |
| A hirdető: | Ingatlaniroda ajánlatából |
| Értékesítés típusa: | Eladó |
| Használtság: | Új építésű |
| Telek nagysága (m2) : | 1346 |
| Épület hasznos területe (m2) : | 181.00 |
| Szobák száma: | 5 |
| Feladás dátuma: | 2026.04.26 |
| Eddig megtekintették 32 alkalommal | |
A hirdető adatai
Kapcsolat a hirdetővel...
Családi házak rovaton belül a(z) "Eladó 181.00 nm-es Új építésű Családi ház Hernád" című hirdetést látja. (fent)




























