
Hamarosan átadás! Ikerházi lakás foglalható Szombathelyen, a
Szombathelyen, az oladi platón megépülő ikerház várja új lakóit, 2026 tavaszi
átadással. Otthon Start hitel és Csok plusz támogatott hitel igénybe vehető! A
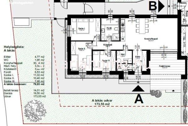
épület: - 80 m2 + 14 m2 fedett terasz, 173 m2 saját kert, nappali + három
szoba kialakítással Ára: 80.700.000.- Ft B épület: - 90 m2 + 15 m2
fedett terasz, 431 m2 saját kert, nappali + három szoba kialakítással Ára:
89.500.000.- Ft Az ingatlan főbb jellemzői: - tégla kivitelezés, megbízható
cégtől, referenciákkal - 80 és/vagy 90 m2-es lakórész, fedett terasszal - egyéni
garázs vásárolható, 19,5 m2 alapterülettel - hőszivattyús padlófűtés - 200
literes hőtárolós víztartály (aminek a felfűtését szintén a hőszivattyú
biztosítja) - fedett terasz - belső kialakítás módosításának lehetősége, egyéni
ízlés/igény szerint - az ikerház falai csak a nappalinál érnek össze Egyéb
információk: - Burkolatok saját ízlés szerint választhatók: Meleg burkolat:
laminált parketta, szegély, alátét habfólia: bruttó 7.500.- Ft/m2 árig Hideg
burkolat: bruttó 8.500.- Ft/m2 árig - Gépészet: a fűtést biztosító háztartási
helyiségben elhelyezett 10 Kw Gree Versati 3 hőszivattyú, padlófűtéses rendszer
készül 1 db szabályozható termosztáttal. A Gree Versati hőszivattyú biztosítja
a melegvizet is egy 200 literes hőtárolós víztartállyal. ? a hőszívattyú a
műszaki tartalom része. Nappaliban elhelyezésre kerül 1db 3,5 KW Gree klíma -
Bejárati ajtó br. 315.000.- ft értékű, választható panellel. - Belső
nyílászárók: a belső ajtók több színből választható dekorfóliás tele ajtók + tok
+ kilincs (br. 115.000.-/db). - Szaniterek, csaptelek: a kádat vagy zuhany,
mosdókat és 1 db WC-t tartalmaz a vételár. A fürdőben az alapkiépítés 1 db kádat
(lábazat + burkolt előlap + csaptelep + zuhanyfej + szerelvények), és egy mosdót
(1 db csaptelep + szerelvények) tartalmaz. - Egy db beépített WC, kézmosó 1 db
csapteleppel + szerelvények. - A fürdőszoba és WC helyiségekben elhelyezett
szaniterek + csaptelepek értéke keretszerződés szerint bruttó 450.000.- Ft. -
Riasztó előkészítés 5 db érzékelési ponttal. Kaputelefon előkészítés. Belső
világítás előkészítés (vezetékes kiépítése helyiségenként egy db kiállással),
nappaliban 4 világítás előkészítés - Udvar, térkő burkolatok: Az eladási ár a
járda, térburkolatok kivitelezését 30 négyzetméterig biztosítja, a felette
igényelt mennyiség külön díjazás fejében készülhet, melynek ára 31.500.-
Ft/m2. Garázs vásárolható (19,5 m2 alapterületű) Ára: 7.239.000.-
Ft További információkért, műszaki leírásért és megtekintésért kérem, keressen
elérhetőségeimen! Az ingatlan vásárlásához hitek is igényelhető, melyben
irodánk szintén segítségére van - akár abban is, hogy meglévő ingatlanát
értékesítsük minőségi váltás jegyében!!! Éljen a lehetőségekkel és költözzön
modern, új otthonba Ön is!
átadással. Otthon Start hitel és Csok plusz támogatott hitel igénybe vehető! A
épület: - 80 m2 + 14 m2 fedett terasz, 173 m2 saját kert, nappali + három
szoba kialakítással Ára: 80.700.000.- Ft B épület: - 90 m2 + 15 m2
fedett terasz, 431 m2 saját kert, nappali + három szoba kialakítással Ára:
89.500.000.- Ft Az ingatlan főbb jellemzői: - tégla kivitelezés, megbízható
cégtől, referenciákkal - 80 és/vagy 90 m2-es lakórész, fedett terasszal - egyéni
garázs vásárolható, 19,5 m2 alapterülettel - hőszivattyús padlófűtés - 200
literes hőtárolós víztartály (aminek a felfűtését szintén a hőszivattyú
biztosítja) - fedett terasz - belső kialakítás módosításának lehetősége, egyéni
ízlés/igény szerint - az ikerház falai csak a nappalinál érnek össze Egyéb
információk: - Burkolatok saját ízlés szerint választhatók: Meleg burkolat:
laminált parketta, szegély, alátét habfólia: bruttó 7.500.- Ft/m2 árig Hideg
burkolat: bruttó 8.500.- Ft/m2 árig - Gépészet: a fűtést biztosító háztartási
helyiségben elhelyezett 10 Kw Gree Versati 3 hőszivattyú, padlófűtéses rendszer
készül 1 db szabályozható termosztáttal. A Gree Versati hőszivattyú biztosítja
a melegvizet is egy 200 literes hőtárolós víztartállyal. ? a hőszívattyú a
műszaki tartalom része. Nappaliban elhelyezésre kerül 1db 3,5 KW Gree klíma -
Bejárati ajtó br. 315.000.- ft értékű, választható panellel. - Belső
nyílászárók: a belső ajtók több színből választható dekorfóliás tele ajtók + tok
+ kilincs (br. 115.000.-/db). - Szaniterek, csaptelek: a kádat vagy zuhany,
mosdókat és 1 db WC-t tartalmaz a vételár. A fürdőben az alapkiépítés 1 db kádat
(lábazat + burkolt előlap + csaptelep + zuhanyfej + szerelvények), és egy mosdót
(1 db csaptelep + szerelvények) tartalmaz. - Egy db beépített WC, kézmosó 1 db
csapteleppel + szerelvények. - A fürdőszoba és WC helyiségekben elhelyezett
szaniterek + csaptelepek értéke keretszerződés szerint bruttó 450.000.- Ft. -
Riasztó előkészítés 5 db érzékelési ponttal. Kaputelefon előkészítés. Belső
világítás előkészítés (vezetékes kiépítése helyiségenként egy db kiállással),
nappaliban 4 világítás előkészítés - Udvar, térkő burkolatok: Az eladási ár a
járda, térburkolatok kivitelezését 30 négyzetméterig biztosítja, a felette
igényelt mennyiség külön díjazás fejében készülhet, melynek ára 31.500.-
Ft/m2. Garázs vásárolható (19,5 m2 alapterületű) Ára: 7.239.000.-
Ft További információkért, műszaki leírásért és megtekintésért kérem, keressen
elérhetőségeimen! Az ingatlan vásárlásához hitek is igényelhető, melyben
irodánk szintén segítségére van - akár abban is, hogy meglévő ingatlanát
értékesítsük minőségi váltás jegyében!!! Éljen a lehetőségekkel és költözzön
modern, új otthonba Ön is!
Részletek...
Adatlap
| Ár: | 80.700.000 Ft |
| Település: | Szombathely |
| A hirdető: | Ingatlaniroda ajánlatából |
| Értékesítés típusa: | Eladó |
| Használtság: | Használt |
| Telek nagysága (m2) : | 270 |
| Épület hasznos területe (m2) : | 80.00 |
| Szobák száma: | 4 |
| Feladás dátuma: | 2026.04.26 |
| Eddig megtekintették 48 alkalommal | |
A hirdető adatai
Kapcsolat a hirdetővel...
Családi házak rovaton belül a(z) "Hamarosan átadás! Ikerházi lakás foglalható Szombathelyen, a" című hirdetést látja. (fent)



























