
Eladó családi ház Telki, Telki
Telkiben, természetközeli környezetben várja új tulajdonosát a fotókon látható
teljes körűen felújított, panorámás családi ház, csendes zsákutcában.Az 530
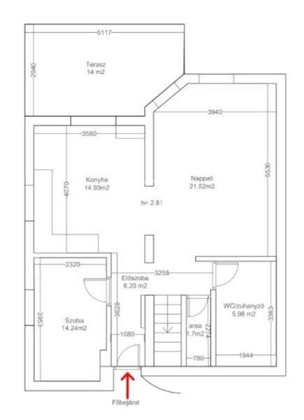
négyzetméteres telekre épült, 151 nm-es kétszintes, nappali + 3 szobás, világos
terekkel rendelkező, frissen, teljes körűen felújított, panorámás családi ház
különleges értéke a Zsámbéki-medence felé nyíló panoráma, amely a mindennapoknak
is egyedi hangulatot ad.Budapest gyorsan elérhető: autóval körülbelül 20 perc,
tömegközlekedéssel megközelítőleg fél óra. A buszmegálló gyalogosan mindössze
néhány percre található a háztól.A teljes felújítás nem csak a házat, hanem a
teljes portát, a kert felújítását is jelenti, a munkálatok utolsó fázisai
március végére fejeződnek be. Ennek megfelelően a vevő kulcsátadáskor egy
esztétikailag és minőségében egységes, új állapotú ingatlant vehet birtokba. A
felújítás részletei és a műszaki tartalom rendelkezésre áll. A földszinti a
tágas, amerikai konyhás nappali közvetlen terasz és kert kapcsolatos. Ezen a
szinten helyet kapott egy külön szoba is, amely ideális dolgozószobának,
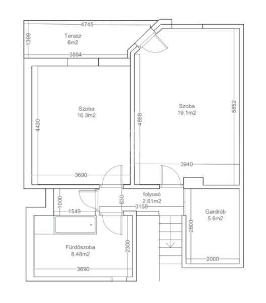
vendégszobának vagy gyerekszobának.Az emeleten két hálószoba található, melyek
közül az egyikből közvetlen kijárat nyílik a nagy méretű erkélyre. A panoráma
innen a legszebb: zavartalan kilátás a zsámbéki-medencére, különösen kellemes
reggel és naplemente idején.A ház kényelmét növeli, hogy mindkét szinten külön
fürdőszoba áll rendelkezésre: az alsó szinten praktikus zuhanyzós, míg a felső
szinten egy kádas fürdőszoba biztosítja a komfortot.Az egyik hálószobához
gardróbhelyiség is kapcsolódik, emellett több praktikus tároló is rendelkezésre
áll. A konyha prémium AEG gépekkel felszerelt. A komfortot elektromos redőnyök
és klímaberendezés növeli. A korszerű gázkazánnak köszönhetően az ingatlan
gazdaságosan fenntartható.Különlegességként a kert felőli részen egy klimatizált
műhely/alkotótér is kialakításra került, amely hobbi- vagy kreatív tevékenységre
kiváló.A rendezett, gondozott kert pázsittal és dísznövényekkel parkosított, az
itt kialakított grillhely kényelmes helyszín baráti és családi
összejövetelekhez. Az öntözést saját kút segíti, így a fenntartás
költséghatékony.A biztonságról riasztórendszer és kültéri kamerák gondoskodnak.
A parkolást elektromos kapuval ellátott beálló(k) és fűtött garázs
biztosítja.Telki közkedvelt, biztonságos település, kiváló infrastruktúrával. A
közelben elérhetők üzletek, szolgáltatások, sportolási lehetőségek (MLSZ
edzőközpont) és tömegközlekedés is, miközben a természet közelsége a mindennapok
része.Az ingatlan ideális választás azoknak, akik felújított, panorámás,
természetközeli otthont keresnek Budapest közvetlen közelében. Budapest gyorsan
elérhető: autóval körülbelül 20 perc, tömegközlekedéssel, a buszmegálló
gyalogosan mindössze néhány percre található a háztól.Ha felkeltette
érdeklődését és szeretné személyesen is látni, várom hívását a hét bármely
napján.BANKFÜGGETLEN hitelcentrumunk minden elérhető bank és hitelintézet
ajánlatát versenyezteti az Ön kedvéért, ráadásul díjmentesen. Önnek nincs más
dolga, mint elbeszélgetni munkatársunkkal, aki a hallott információk alapján
versenyre hívja a bankokat, hogy Ön hosszú távon is a legjobb konstrukciót
kaphassa. A legjobb ajánlatokból végül Ön választhatja ki a nyertest.
Munkatársaink sokéves szakmai tapasztalattal várják Önt, előre egyeztetve akár a
normál munkaidő után is. ...TOVÁBBI, TÖBBEZRES INGATLAN KÍNÁLAT:
www.gdn-ingatlan.hu - GDN azonosító: 392653
teljes körűen felújított, panorámás családi ház, csendes zsákutcában.Az 530
négyzetméteres telekre épült, 151 nm-es kétszintes, nappali + 3 szobás, világos
terekkel rendelkező, frissen, teljes körűen felújított, panorámás családi ház
különleges értéke a Zsámbéki-medence felé nyíló panoráma, amely a mindennapoknak
is egyedi hangulatot ad.Budapest gyorsan elérhető: autóval körülbelül 20 perc,
tömegközlekedéssel megközelítőleg fél óra. A buszmegálló gyalogosan mindössze
néhány percre található a háztól.A teljes felújítás nem csak a házat, hanem a
teljes portát, a kert felújítását is jelenti, a munkálatok utolsó fázisai
március végére fejeződnek be. Ennek megfelelően a vevő kulcsátadáskor egy
esztétikailag és minőségében egységes, új állapotú ingatlant vehet birtokba. A
felújítás részletei és a műszaki tartalom rendelkezésre áll. A földszinti a
tágas, amerikai konyhás nappali közvetlen terasz és kert kapcsolatos. Ezen a
szinten helyet kapott egy külön szoba is, amely ideális dolgozószobának,
vendégszobának vagy gyerekszobának.Az emeleten két hálószoba található, melyek
közül az egyikből közvetlen kijárat nyílik a nagy méretű erkélyre. A panoráma
innen a legszebb: zavartalan kilátás a zsámbéki-medencére, különösen kellemes
reggel és naplemente idején.A ház kényelmét növeli, hogy mindkét szinten külön
fürdőszoba áll rendelkezésre: az alsó szinten praktikus zuhanyzós, míg a felső
szinten egy kádas fürdőszoba biztosítja a komfortot.Az egyik hálószobához
gardróbhelyiség is kapcsolódik, emellett több praktikus tároló is rendelkezésre
áll. A konyha prémium AEG gépekkel felszerelt. A komfortot elektromos redőnyök
és klímaberendezés növeli. A korszerű gázkazánnak köszönhetően az ingatlan
gazdaságosan fenntartható.Különlegességként a kert felőli részen egy klimatizált
műhely/alkotótér is kialakításra került, amely hobbi- vagy kreatív tevékenységre
kiváló.A rendezett, gondozott kert pázsittal és dísznövényekkel parkosított, az
itt kialakított grillhely kényelmes helyszín baráti és családi
összejövetelekhez. Az öntözést saját kút segíti, így a fenntartás
költséghatékony.A biztonságról riasztórendszer és kültéri kamerák gondoskodnak.
A parkolást elektromos kapuval ellátott beálló(k) és fűtött garázs
biztosítja.Telki közkedvelt, biztonságos település, kiváló infrastruktúrával. A
közelben elérhetők üzletek, szolgáltatások, sportolási lehetőségek (MLSZ
edzőközpont) és tömegközlekedés is, miközben a természet közelsége a mindennapok
része.Az ingatlan ideális választás azoknak, akik felújított, panorámás,
természetközeli otthont keresnek Budapest közvetlen közelében. Budapest gyorsan
elérhető: autóval körülbelül 20 perc, tömegközlekedéssel, a buszmegálló
gyalogosan mindössze néhány percre található a háztól.Ha felkeltette
érdeklődését és szeretné személyesen is látni, várom hívását a hét bármely
napján.BANKFÜGGETLEN hitelcentrumunk minden elérhető bank és hitelintézet
ajánlatát versenyezteti az Ön kedvéért, ráadásul díjmentesen. Önnek nincs más
dolga, mint elbeszélgetni munkatársunkkal, aki a hallott információk alapján
versenyre hívja a bankokat, hogy Ön hosszú távon is a legjobb konstrukciót
kaphassa. A legjobb ajánlatokból végül Ön választhatja ki a nyertest.
Munkatársaink sokéves szakmai tapasztalattal várják Önt, előre egyeztetve akár a
normál munkaidő után is. ...TOVÁBBI, TÖBBEZRES INGATLAN KÍNÁLAT:
www.gdn-ingatlan.hu - GDN azonosító: 392653
Részletek...
Adatlap
| Ár: | 169.000.000 Ft |
| Település: | Telki |
| A hirdető: | Ingatlaniroda ajánlatából |
| Értékesítés típusa: | Eladó |
| Használtság: | Használt |
| Utca: | Telki |
| Telek nagysága (m2) : | 530 |
| Épület hasznos területe (m2) : | 151 |
| Szobák száma: | 4 |
| Fűtés: | Cirkó fűtéses |
| Ingatlan állapota: | Felújított |
| Anyaga: | Tégla |
| A hirdető kérése: | Ingatlanközvetítő vagyok - keresse fel Irodánkat! |
| Feladás dátuma: | 2026.03.18 |
| Eddig megtekintették 13 alkalommal | |
A hirdető adatai
Kapcsolat a hirdetővel...
Családi házak rovaton belül a(z) "Eladó családi ház Telki, Telki" című hirdetést látja. (fent)


















![Telki, 151 m2, 169000000 HUF, 4 szoba [4138_927] Telki, 151 m2, 169000000 HUF, 4 szoba [4138_927]](/hirdetesek/ads_new_xml2/15/159556/thmb_telki-151-m2-17300_01773014584.jpg)









