
Eladó ikerház Áporka, EGYSZINTES, ÚJÉPÍTÉSŰ IKERHÁZ!
ÁPORKÁN, CSENDES KERTVÁROSI környezetében, nettó 95 m2-es, nappali + 4 szobás,
AUTÓBEÁLLÓVAL, TÁROLÓVAL ÉRINTKEZŐ, MODERN, EGYSZINTES, ÚJÉPÍTÉSŰ, IKERHÁZAT
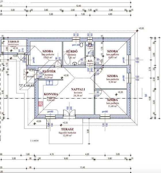
kínálunk eladásra!HELYISÉGEI:-Előtér: 3.29m2-Közlekedő: 1.05m2-Szoba:
10.83m2-Szoba: 9.50m2-Szoba: 11.40m2-Fürdőszoba: 7.41m2-WC: 1,7m2-Szoba:
10.83m2-Nappali: 24.38m2-Konyha: 9.64m2-Tároló: 4.80m2-Terasz: 12m2Az
ingatlanhoz saját, kizárólagos használatú, lekerített TELEKRÉSZEK
tartoznak.Autóbeálló tartozik az ingatlanhoz, a kialakítását a vételár
tartalmazza.Külső falazat: Ytong 30 cm-es, 12 cm-es Dryvit hőszigeteléssel, 20
cm-es cellulóz alapú fújt födém szigeteléssel.Műanyag nyílászárok: 5 légkamrás
fokozott hőszigetelésű mindkét oldalt színezett barna (sötét dió) műanyagból,
thermoplan tripla 0,7k üvegezéssel. Bejárati ajtó szabványnak megfelelő 5 ponton
záródó biztonsági ajtó, mindkét oldalt sötét dió színben.A fűtést HŐSZIVATTYÚ
biztosítja, padlófűtéssel (igény szerint radiátorokkal is).Nagyon IGÉNYES
KIVITELEZÉS, minőségi anyagok felhasználásával épül ( részletes Műszaki
leírással és további anyagokkal rendelkezem.)Külön mérőórák, szeparált
telekrészek, különböző utcai bejáratok!Mindkét házhoz felszíni autóbeálló hely
biztosított.MÉRETEK, TÁJOLÁS, ELRENDEZÉS, AZ ALAPRAJZOKON.( Belső
átalakítás-kialakítás a Vevő igényei alapján megoldható )TERVEZETT ÁTADÁS: 2026.
második negyedév!Megtekinthető elkészült REFERENCIA munkák.Az ikerház CSOK
PLUSZ, FALUSI CSOK valamint 3% START hitelre és egyéb kedvező hitelekre
alkalmas.(Szükség esetén ingyenes hitelügyintézéssel)Az ingatlan tehermentes,
könnyen megközelíthető!Áporka egy Pest megyei község a Csepeli-síkon,
Budapesttől délre, az 51-es főút közelében, Kiskunlacháza szomszédságában. A
Ráckevei-Soroksári Duna-ág (RSD) partján fekvő település kedvelt horgász- és
üdülőhely, amely könnyen elérhető a fővárosból. A nyugodt, családias község
kiváló lehetőségeket kínál a vízi turizmus és a pihenés kedvelőinek. Főbb
jellemzők:Fekvés: Budapesttől kb. 30-40 perc autóútra, a Ráckevei-Soroksári Duna
bal partján.Áporka ideális célpont azoknak, akik a főváros közelségében keresnek
vízparti kikapcsolódást. Az ingatlan megtekintése előre egyeztetett időpontban
lehetséges, akár hétvégén is. Bővebb információkkal kapcsolatban várom
jelentkezését, keressen bizalommal a hét minden napján! ...TOVÁBBI, TÖBBEZRES
INGATLAN KÍNÁLAT: www.gdn-ingatlan.hu - GDN azonosító: 392643
AUTÓBEÁLLÓVAL, TÁROLÓVAL ÉRINTKEZŐ, MODERN, EGYSZINTES, ÚJÉPÍTÉSŰ, IKERHÁZAT
kínálunk eladásra!HELYISÉGEI:-Előtér: 3.29m2-Közlekedő: 1.05m2-Szoba:
10.83m2-Szoba: 9.50m2-Szoba: 11.40m2-Fürdőszoba: 7.41m2-WC: 1,7m2-Szoba:
10.83m2-Nappali: 24.38m2-Konyha: 9.64m2-Tároló: 4.80m2-Terasz: 12m2Az
ingatlanhoz saját, kizárólagos használatú, lekerített TELEKRÉSZEK
tartoznak.Autóbeálló tartozik az ingatlanhoz, a kialakítását a vételár
tartalmazza.Külső falazat: Ytong 30 cm-es, 12 cm-es Dryvit hőszigeteléssel, 20
cm-es cellulóz alapú fújt födém szigeteléssel.Műanyag nyílászárok: 5 légkamrás
fokozott hőszigetelésű mindkét oldalt színezett barna (sötét dió) műanyagból,
thermoplan tripla 0,7k üvegezéssel. Bejárati ajtó szabványnak megfelelő 5 ponton
záródó biztonsági ajtó, mindkét oldalt sötét dió színben.A fűtést HŐSZIVATTYÚ
biztosítja, padlófűtéssel (igény szerint radiátorokkal is).Nagyon IGÉNYES
KIVITELEZÉS, minőségi anyagok felhasználásával épül ( részletes Műszaki
leírással és további anyagokkal rendelkezem.)Külön mérőórák, szeparált
telekrészek, különböző utcai bejáratok!Mindkét házhoz felszíni autóbeálló hely
biztosított.MÉRETEK, TÁJOLÁS, ELRENDEZÉS, AZ ALAPRAJZOKON.( Belső
átalakítás-kialakítás a Vevő igényei alapján megoldható )TERVEZETT ÁTADÁS: 2026.
második negyedév!Megtekinthető elkészült REFERENCIA munkák.Az ikerház CSOK
PLUSZ, FALUSI CSOK valamint 3% START hitelre és egyéb kedvező hitelekre
alkalmas.(Szükség esetén ingyenes hitelügyintézéssel)Az ingatlan tehermentes,
könnyen megközelíthető!Áporka egy Pest megyei község a Csepeli-síkon,
Budapesttől délre, az 51-es főút közelében, Kiskunlacháza szomszédságában. A
Ráckevei-Soroksári Duna-ág (RSD) partján fekvő település kedvelt horgász- és
üdülőhely, amely könnyen elérhető a fővárosból. A nyugodt, családias község
kiváló lehetőségeket kínál a vízi turizmus és a pihenés kedvelőinek. Főbb
jellemzők:Fekvés: Budapesttől kb. 30-40 perc autóútra, a Ráckevei-Soroksári Duna
bal partján.Áporka ideális célpont azoknak, akik a főváros közelségében keresnek
vízparti kikapcsolódást. Az ingatlan megtekintése előre egyeztetett időpontban
lehetséges, akár hétvégén is. Bővebb információkkal kapcsolatban várom
jelentkezését, keressen bizalommal a hét minden napján! ...TOVÁBBI, TÖBBEZRES
INGATLAN KÍNÁLAT: www.gdn-ingatlan.hu - GDN azonosító: 392643
Részletek...
Adatlap
| Ár: | 79.500.000 Ft |
| Település: | Áporka |
| A hirdető: | Ingatlaniroda ajánlatából |
| Értékesítés típusa: | Eladó |
| Használtság: | Új építésű |
| Utca: | EGYSZINTES, ÚJÉPÍTÉSŰ IKERHÁZ! |
| Telek nagysága (m2) : | 440 |
| Épület hasznos területe (m2) : | 95 |
| Szobák száma: | 5 |
| Anyaga: | Egyéb anyagból készült épület |
| A hirdető kérése: | Ingatlanközvetítő vagyok - keresse fel Irodánkat! |
| Feladás dátuma: | 2026.04.24 |
| Eddig megtekintették 25 alkalommal | |
A hirdető adatai
Kapcsolat a hirdetővel...
Családi házak rovaton belül a(z) "Eladó ikerház Áporka, EGYSZINTES, ÚJÉPÍTÉSŰ IKERHÁZ!" című hirdetést látja. (fent)




























