
Eladó családi ház Kóka, Erdősor utca
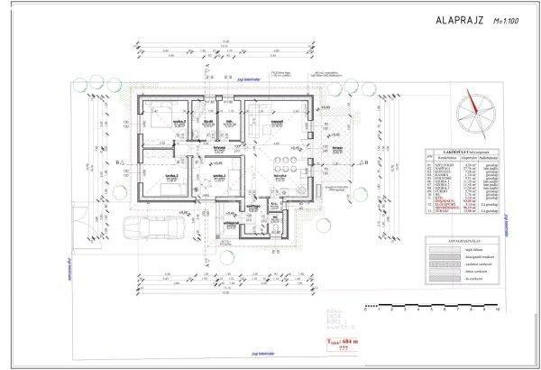
Kókán az Erdősor utca 16- szám alatt , 680 m2-es telken nettó 93,05 m2-es három
szoba + amerikai konyhás nappalival rendelkező, energiahatékony önálló családi
ház eladó, számos referenciával rendelkező kivitelezőtől!A tartószerkezeti falak
Porotherm P30N+F téglából, betonkoszorúval, fa födémes tetőszerkezettel
készülnek. A lábazat 10 cm polisztirol lépésálló, a homlokzatok 15cm-es EPS, a
vízszintes födém 30 cm ásványgyapot szigeteléssel lesz ellátva.Három rétegű
üvegekkel szerelt, hat légkamrás műanyag thermo nyílászárók kerülnek
beépítésre.A minimális energiaigényt a megfelelő szigetelésen kívül a megújuló
energiát használó gépészet is biztosítja. A fűtést levegő-víz hőszivattyús
rendszer fogja végezni.Burkolatok , szaniterek, belső ajtók, csaptelepek
választhatóak a következő értékhatárig:-Hidegburkolat: 3000
Ft.-/m2-Melegburkolat: 3000 Ft.-/m2-Beltéri ajtók: 30.000.Ft.-/db-Fürdőkád:
40.000.- Ft.--Csaptelepek: 15000.- Ft.-/dbMagasabb árú választás is lehetséges,
a különbség finanszírozásával.A kivitelező korábban Sülysápon épített, már
birtokbaadott ingatlanjait komoly érdeklődés esetén szívesen megmutatjuk
referenciaként.Csok plusz és Otthon Start igényelhető!Tervezett átadás 2026
harmadik negyedév végeINGYENES hitel tanácsadás, CSOK Plusz
ügyintézés!BANKFÜGGETLEN hitelcentrumunk az összes elérhető bank és hitelintézet
ajánlatát versenyezteti az Ön kedvéért, ráadásul DÍJMENTESEN.- Egyedi,
bankfiókban nem elérhető kamat- és díjkedvezmények- Hitelképesség vizsgálat-
Idő, energia és pénz megtakarítás- Teljes hivatali ügyintézésAmennyiben
hirdetésem felkeltette az érdeklődését vagy egyéb információra van szüksége
hívjon bizalommal! ...TOVÁBBI, TÖBBEZRES INGATLAN KÍNÁLAT: www.gdn-ingatlan.hu -
GDN azonosító: 392822
szoba + amerikai konyhás nappalival rendelkező, energiahatékony önálló családi
ház eladó, számos referenciával rendelkező kivitelezőtől!A tartószerkezeti falak
Porotherm P30N+F téglából, betonkoszorúval, fa födémes tetőszerkezettel
készülnek. A lábazat 10 cm polisztirol lépésálló, a homlokzatok 15cm-es EPS, a
vízszintes födém 30 cm ásványgyapot szigeteléssel lesz ellátva.Három rétegű
üvegekkel szerelt, hat légkamrás műanyag thermo nyílászárók kerülnek
beépítésre.A minimális energiaigényt a megfelelő szigetelésen kívül a megújuló
energiát használó gépészet is biztosítja. A fűtést levegő-víz hőszivattyús
rendszer fogja végezni.Burkolatok , szaniterek, belső ajtók, csaptelepek
választhatóak a következő értékhatárig:-Hidegburkolat: 3000
Ft.-/m2-Melegburkolat: 3000 Ft.-/m2-Beltéri ajtók: 30.000.Ft.-/db-Fürdőkád:
40.000.- Ft.--Csaptelepek: 15000.- Ft.-/dbMagasabb árú választás is lehetséges,
a különbség finanszírozásával.A kivitelező korábban Sülysápon épített, már
birtokbaadott ingatlanjait komoly érdeklődés esetén szívesen megmutatjuk
referenciaként.Csok plusz és Otthon Start igényelhető!Tervezett átadás 2026
harmadik negyedév végeINGYENES hitel tanácsadás, CSOK Plusz
ügyintézés!BANKFÜGGETLEN hitelcentrumunk az összes elérhető bank és hitelintézet
ajánlatát versenyezteti az Ön kedvéért, ráadásul DÍJMENTESEN.- Egyedi,
bankfiókban nem elérhető kamat- és díjkedvezmények- Hitelképesség vizsgálat-
Idő, energia és pénz megtakarítás- Teljes hivatali ügyintézésAmennyiben
hirdetésem felkeltette az érdeklődését vagy egyéb információra van szüksége
hívjon bizalommal! ...TOVÁBBI, TÖBBEZRES INGATLAN KÍNÁLAT: www.gdn-ingatlan.hu -
GDN azonosító: 392822
Részletek...
Adatlap
| Ár: | 69.900.000 Ft |
| Település: | Kóka |
| A hirdető: | Ingatlaniroda ajánlatából |
| Értékesítés típusa: | Eladó |
| Használtság: | Új építésű |
| Utca: | Erdősor utca |
| Telek nagysága (m2) : | 680 |
| Épület hasznos területe (m2) : | 93 |
| Szobák száma: | 4 |
| Anyaga: | Tégla |
| A hirdető kérése: | Ingatlanközvetítő vagyok - keresse fel Irodánkat! |
| Feladás dátuma: | 2026.04.24 |
| Eddig megtekintették 31 alkalommal | |
A hirdető adatai
Kapcsolat a hirdetővel...
Családi házak rovaton belül a(z) "Eladó családi ház Kóka, Erdősor utca" című hirdetést látja. (fent)




























