
Eladó 113m2-es Ikerház, Gödöllő
Gödöllő központhoz közeli kertvárosi részén, nappali + 4 szobás újépítésű
ikerházfél referenciákkal rendelkező, megbízható építőtől eladó!Műszaki
paraméterek:- 30-as Porotherm tégla falazat + 10cm grafit szigetelés,- beton
cserépfedés,- födémen 20cm vastag kőzetgyapot,- 3 réteg üvegezésű, 5 légkamrás
hőszigetelt nyílászárókkal, redőny előkészítéssel,- kondenzációs kazán vagy
hőszivattyú (+3Mft), padlófűtéssel,- riasztó előkészítés, - hűtő-fűtő klíma
250.000.-Ft-ig,- bejárati ajtó: 250.000.-Ft,- beltéri ajtók: 70.000.-Ft/db,-
kerámia burkolatok 5.500.-Ft/nm,- parketta 4.500.-Ft/nm,- mosdó 20.000.-Ft/db,-
WC 30.000.-Ft/db,- csaptelepek 15.000.-Ft/db,- kád 50.000.-Ft,- zuhanyfolyóka
25.000.-Ft,- helyiségenként 1db kiállás + kiállások
25.000.-Ft/db,- helyiségenként 1db kapcsoló + kapcsolók 35.000.-Ft/db.Elosztás:-
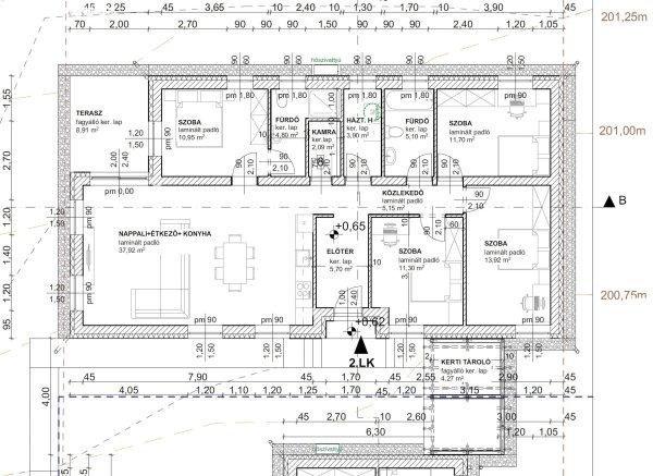
előtér, nappali-konyha-étkező, kamra, közlekedő, 4 szoba, egy zuhanyzó és egy
kádas fürdőszoba, háztartási helyiség + 8,91nm terasz + 4,27nm kerti
tárolóTelek:- 500nm-es telken helyezkedik el, parkoláshoz kocsibeálló kerül
kialakításra,- kaputól a bejárati ajtóig 1m széles, térkövezett járda,- Kerítés
díszkővel, fa vagy acél közökkel.Környék:- Elhelyezkedése kiváló, iskola, óvoda,
helyi és távolsági buszmegálló a közelben.Az ingatlant megbízható kivitelező
építi! Burkolatok, belső ajtók a vevői igényei szerint még szabadon
választhatók!Kérésre teljes műszaki tartalmat, alaprajzot szívesen
küldünk!Irányár: 129.000.000.-FtHivatkozási szám: 2518262.Megtekinthető
telefonos időpont egyeztetés alapján:Sápi Balázs +36 20 772-2429
sapibalazs@godolloi.hu GÖDÖLLŐ INGATLANKÖZPONT - www.godolloi.hu: Gödöllő és
környéke legnagyobb ingatlan választéka /Gödöllő, Szada, Veresegyház, Kistarcsa,
Kerepes, Erdőkertes, Fót, Dunakeszi/ eladó-kiadó családi ház, telek, lakás!
Ingatlan építés és felújítás!
ikerházfél referenciákkal rendelkező, megbízható építőtől eladó!Műszaki
paraméterek:- 30-as Porotherm tégla falazat + 10cm grafit szigetelés,- beton
cserépfedés,- födémen 20cm vastag kőzetgyapot,- 3 réteg üvegezésű, 5 légkamrás
hőszigetelt nyílászárókkal, redőny előkészítéssel,- kondenzációs kazán vagy
hőszivattyú (+3Mft), padlófűtéssel,- riasztó előkészítés, - hűtő-fűtő klíma
250.000.-Ft-ig,- bejárati ajtó: 250.000.-Ft,- beltéri ajtók: 70.000.-Ft/db,-
kerámia burkolatok 5.500.-Ft/nm,- parketta 4.500.-Ft/nm,- mosdó 20.000.-Ft/db,-
WC 30.000.-Ft/db,- csaptelepek 15.000.-Ft/db,- kád 50.000.-Ft,- zuhanyfolyóka
25.000.-Ft,- helyiségenként 1db kiállás + kiállások
25.000.-Ft/db,- helyiségenként 1db kapcsoló + kapcsolók 35.000.-Ft/db.Elosztás:-
előtér, nappali-konyha-étkező, kamra, közlekedő, 4 szoba, egy zuhanyzó és egy
kádas fürdőszoba, háztartási helyiség + 8,91nm terasz + 4,27nm kerti
tárolóTelek:- 500nm-es telken helyezkedik el, parkoláshoz kocsibeálló kerül
kialakításra,- kaputól a bejárati ajtóig 1m széles, térkövezett járda,- Kerítés
díszkővel, fa vagy acél közökkel.Környék:- Elhelyezkedése kiváló, iskola, óvoda,
helyi és távolsági buszmegálló a közelben.Az ingatlant megbízható kivitelező
építi! Burkolatok, belső ajtók a vevői igényei szerint még szabadon
választhatók!Kérésre teljes műszaki tartalmat, alaprajzot szívesen
küldünk!Irányár: 129.000.000.-FtHivatkozási szám: 2518262.Megtekinthető
telefonos időpont egyeztetés alapján:Sápi Balázs +36 20 772-2429
sapibalazs@godolloi.hu GÖDÖLLŐ INGATLANKÖZPONT - www.godolloi.hu: Gödöllő és
környéke legnagyobb ingatlan választéka /Gödöllő, Szada, Veresegyház, Kistarcsa,
Kerepes, Erdőkertes, Fót, Dunakeszi/ eladó-kiadó családi ház, telek, lakás!
Ingatlan építés és felújítás!
Részletek...
Adatlap
| Ár: | 129.000.000 Ft |
| Település: | Gödöllő |
| A hirdető: | Ingatlaniroda ajánlatából |
| Értékesítés típusa: | Eladó |
| Telek nagysága (m2) : | 600 |
| Épület hasznos területe (m2) : | 113 |
| Szobák száma: | 5 |
| Komfort: | Duplakomfortos |
| Fűtés: | Egyéb fűtéses |
| Ingatlan állapota: | Normál állapotú |
| Anyaga: | Tégla |
| A hirdető kérése: | Ingatlanközvetítő vagyok - keresse fel Irodánkat! |
| Feladás dátuma: | 2026.05.08 |
| Eddig megtekintették 20 alkalommal | |
A hirdető adatai
Kapcsolat a hirdetővel...
Családi házak rovaton belül a(z) "Eladó 113m2-es Ikerház, Gödöllő" című hirdetést látja. (fent)




























