
4680/I: Felsőgödön épülő, garázsos, ikerház mindkét lakása e
Kedves Otthonkereső!Felsőgödön épülő, garázsos, ikerház mindkét lakása
eladó!Az aktuális állami támogatások valamint kedvezményes, kamattámogatott
hitelek felvehetőek ? akár a 3%-os OTTHON START hitel, CSOK PLUS, babaváró is
igényelhető, az ügyintézésben díjmentesen segítünk!Az építő munkájára jellemző a
megbízhatóság és igényesség, leinformálható, referencia házai megtekinthetők.A
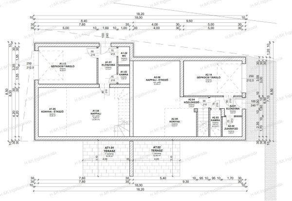
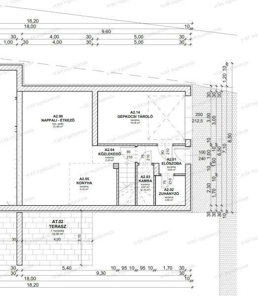
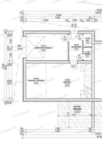
ház kb. 430 nm-es telekrészre épül, a lakások területe megegyezik, de a belső
kialakításuk egy kicsit eltér, a mellékelt alaprajz szerint.Belső terük a
garázzsal 114 nm + 12 nm terasz, amerikai-konyhás nappali + 4 szobás,
belső-kétszintes elrendezéssel.Parkolás: garázsbanA lakások fűtése - meleg víz
ellátása hőszivattyúval történik, a hő leadás padlófűtéssel történik.Az ingatlan
kulcsrakész állapotban kerül átadásra, konyhabútor nélkül.Burkolatok,
szaniterek, belső ajtók választhatók, a belső műszaki tartalomban megjelölt
összegig a vételár részét képezik.A mellékelt látványterv mesterséges
intelligencia által generált illusztráció, a végleges homlokzati kialakítás a
tervdokumentációban meghatározottak szerint történik.Ára: 114.900.000.- Ft /
lakásAzonosító: 4680/I
eladó!Az aktuális állami támogatások valamint kedvezményes, kamattámogatott
hitelek felvehetőek ? akár a 3%-os OTTHON START hitel, CSOK PLUS, babaváró is
igényelhető, az ügyintézésben díjmentesen segítünk!Az építő munkájára jellemző a
megbízhatóság és igényesség, leinformálható, referencia házai megtekinthetők.A
ház kb. 430 nm-es telekrészre épül, a lakások területe megegyezik, de a belső
kialakításuk egy kicsit eltér, a mellékelt alaprajz szerint.Belső terük a
garázzsal 114 nm + 12 nm terasz, amerikai-konyhás nappali + 4 szobás,
belső-kétszintes elrendezéssel.Parkolás: garázsbanA lakások fűtése - meleg víz
ellátása hőszivattyúval történik, a hő leadás padlófűtéssel történik.Az ingatlan
kulcsrakész állapotban kerül átadásra, konyhabútor nélkül.Burkolatok,
szaniterek, belső ajtók választhatók, a belső műszaki tartalomban megjelölt
összegig a vételár részét képezik.A mellékelt látványterv mesterséges
intelligencia által generált illusztráció, a végleges homlokzati kialakítás a
tervdokumentációban meghatározottak szerint történik.Ára: 114.900.000.- Ft /
lakásAzonosító: 4680/I
Részletek...
Adatlap
| Ár: | 114.900.000 Ft |
| Település: | Göd |
| A hirdető: | Ingatlaniroda ajánlatából |
| Értékesítés típusa: | Eladó |
| Telek nagysága (m2) : | 215 |
| Épület hasznos területe (m2) : | 114 |
| Szobák száma: | 4 |
| Komfort: | Duplakomfortos |
| Ingatlan állapota: | Normál állapotú |
| Anyaga: | Tégla |
| A hirdető kérése: | Ingatlanközvetítő vagyok - keresse fel Irodánkat! |
| Feladás dátuma: | 2026.04.29 |
| Eddig megtekintették 28 alkalommal | |
A hirdető adatai
Kapcsolat a hirdetővel...
Családi házak rovaton belül a(z) "4680/I: Felsőgödön épülő, garázsos, ikerház mindkét lakása e" című hirdetést látja. (fent)




























