
Nyáregyháza, 93 m2, 82990000 HUF, 4 szoba [4138_936]
ÚJ ÉPÍTÉSŰ, KÉTLAKÁSOS IKERHÁZ ? NYÁREGYHÁZA, KÖZPONTI, CSENDES UTCÁBANNINCS
ÁTHALLÁS! AZ IKERFELEK CSAK AZ AUTÓBEÁLLÓNÁL ÉRINTKEZNEK!MODERN,
ENERGIATAKARÉKOS OTTHON ? KIVÁLÓ ELRENDEZÉSSELNyáregyházán, rendezett, nyugodt
környezetben kínálunk megvételre egy új építésű, kétlakásos ikerház egyik
lakását, amely ideális választás családok számára, akik tágas, jól átgondolt
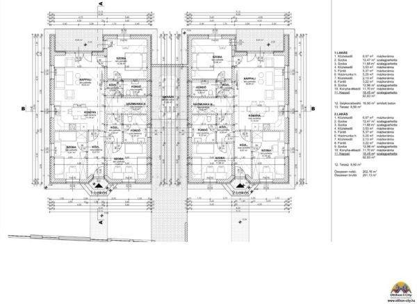
elrendezésű otthont keresnek.FŐBB ADATOKLakás alapterület: 92,83 m˛Terasz: 8,5
m˛Fedett gépkocsibeálló: ~16,5 m˛Szobák száma: 3 szoba + nappali + külön
konyha-étkezőDupla komfort: 2 fürdőszobaHELYISÉGEK ELRENDEZÉSEAz alaprajz kiváló
funkcionalitást biztosít:Tágas, világos nappali (18,45 m˛)Külön konyha-étkező
(11,70 m˛)3 kényelmes méretű hálószoba (12?13 m˛)2 fürdőszobaHáztartási
helyiségTöbb közlekedő, jól szeparált térhasználat?? Ideális akár nagyobb
családnak is, vagy otthoni munkavégzéshez.MŰSZAKI TARTALOM ? MINŐSÉGI
KIVITELEZÉSAz épület korszerű, energiahatékony szerkezettel készül:30 cm
Porotherm Klíma tégla falazat10 cm grafitos EPS homlokzati szigetelés25 cm
födémszigetelésVasbeton alaplemez + több rétegű hő- és vízszigetelésTető:
betoncserép fedés, szellőző légréteggelLábazati XPS szigetelés?? Az ingatlan
alacsony rezsijű, hosszú távon gazdaságos fenntartású.ELŐNYÖKÚj építés ? modern
műszaki tartalomKétlakásos kialakítás ? jó szomszédi viszony, mégis privát
élettérPraktikus, jól élhető alaprajzgépkocsibeállóSaját teraszCsendes, családi
házas övezetELHELYEZKEDÉSNyáregyháza:Nyugodt, kertvárosi környezetJó
megközelíthetőség Budapest irányábaIdeális választás azoknak, akik a város
zajától távol, mégis elérhető közelségben szeretnének élniKINEK
AJÁNLOM?CsaládosoknakNyugodt környezetet
keresőknekBefektetőknekÖSSZEFOGLALVAModern, energiatakarékos, jól átgondolt
elrendezésű új otthon ? kompromisszumok nélkül.Díjmentes hitelügyintézés ?
összes bank ajánlata egy helyenNem adta még el ingatlanát?Ne adja el piaci ár
alatt!Hívjon egy díjmentes felmérésre.További információért, és megtekintésért
várom megkeresését, akár hétvégén is!
ÁTHALLÁS! AZ IKERFELEK CSAK AZ AUTÓBEÁLLÓNÁL ÉRINTKEZNEK!MODERN,
ENERGIATAKARÉKOS OTTHON ? KIVÁLÓ ELRENDEZÉSSELNyáregyházán, rendezett, nyugodt
környezetben kínálunk megvételre egy új építésű, kétlakásos ikerház egyik
lakását, amely ideális választás családok számára, akik tágas, jól átgondolt
elrendezésű otthont keresnek.FŐBB ADATOKLakás alapterület: 92,83 m˛Terasz: 8,5
m˛Fedett gépkocsibeálló: ~16,5 m˛Szobák száma: 3 szoba + nappali + külön
konyha-étkezőDupla komfort: 2 fürdőszobaHELYISÉGEK ELRENDEZÉSEAz alaprajz kiváló
funkcionalitást biztosít:Tágas, világos nappali (18,45 m˛)Külön konyha-étkező
(11,70 m˛)3 kényelmes méretű hálószoba (12?13 m˛)2 fürdőszobaHáztartási
helyiségTöbb közlekedő, jól szeparált térhasználat?? Ideális akár nagyobb
családnak is, vagy otthoni munkavégzéshez.MŰSZAKI TARTALOM ? MINŐSÉGI
KIVITELEZÉSAz épület korszerű, energiahatékony szerkezettel készül:30 cm
Porotherm Klíma tégla falazat10 cm grafitos EPS homlokzati szigetelés25 cm
födémszigetelésVasbeton alaplemez + több rétegű hő- és vízszigetelésTető:
betoncserép fedés, szellőző légréteggelLábazati XPS szigetelés?? Az ingatlan
alacsony rezsijű, hosszú távon gazdaságos fenntartású.ELŐNYÖKÚj építés ? modern
műszaki tartalomKétlakásos kialakítás ? jó szomszédi viszony, mégis privát
élettérPraktikus, jól élhető alaprajzgépkocsibeállóSaját teraszCsendes, családi
házas övezetELHELYEZKEDÉSNyáregyháza:Nyugodt, kertvárosi környezetJó
megközelíthetőség Budapest irányábaIdeális választás azoknak, akik a város
zajától távol, mégis elérhető közelségben szeretnének élniKINEK
AJÁNLOM?CsaládosoknakNyugodt környezetet
keresőknekBefektetőknekÖSSZEFOGLALVAModern, energiatakarékos, jól átgondolt
elrendezésű új otthon ? kompromisszumok nélkül.Díjmentes hitelügyintézés ?
összes bank ajánlata egy helyenNem adta még el ingatlanát?Ne adja el piaci ár
alatt!Hívjon egy díjmentes felmérésre.További információért, és megtekintésért
várom megkeresését, akár hétvégén is!
Részletek...
Adatlap
| Ár: | 82.990.000 Ft |
| Település: | Nyáregyháza |
| A hirdető: | Ingatlaniroda ajánlatából |
| Értékesítés típusa: | Eladó |
| Használtság: | Új építésű |
| Telek nagysága (m2) : | 500 |
| Épület hasznos területe (m2) : | 93 |
| Szobák száma: | 4 |
| Anyaga: | Egyéb anyagból készült épület |
| A hirdető kérése: | Ingatlanközvetítő vagyok - keresse fel Irodánkat! |
| Feladás dátuma: | 2026.03.30 |
| Eddig megtekintették 7 alkalommal | |
A hirdető adatai
Kapcsolat a hirdetővel...
Családi házak rovaton belül a(z) "Nyáregyháza, 93 m2, 82990000 HUF, 4 szoba [4138_936]" című hirdetést látja. (fent)
















![Csévharaszt, 93 m2, 84990000 HUF, 4 szoba [4138_937] Csévharaszt, 93 m2, 84990000 HUF, 4 szoba [4138_937]](/hirdetesek/ads_new_xml2/16/160518/thmb_csevharaszt-93-m2_01774828963.jpg)
![Kecskemét, 93 m2, 94900000 HUF, 3 szoba [2870_1599] Kecskemét, 93 m2, 94900000 HUF, 3 szoba [2870_1599]](/hirdetesek/ads_new_xml2/15/158859/thmb_kecskemet-93-m2-94_01771804985.jpg)
![Budapest XVIII., 136 m2, 150000000 HUF, 5 szoba [4138_905] Budapest XVIII., 136 m2, 150000000 HUF, 5 szoba [4138_905]](/hirdetesek/ads_new_xml2/15/152157/thmb_budapest-xviii-136_01757894581.jpg)
![Kecskemét, 80 m2, 59600000 HUF, 3 szoba [2870_1179] Kecskemét, 80 m2, 59600000 HUF, 3 szoba [2870_1179]](/hirdetesek/ads_new_xml2/15/155945/thmb_kecskemet-80-m2-59_01764547357.jpg)

![Nyáregyháza, 93 m2, 82990000 HUF, 4 szoba [4138_936] Nyáregyháza, 93 m2, 82990000 HUF, 4 szoba [4138_936]](/hirdetesek/ads_new_xml2/16/160517/thmb_nyaregyhaza-93-m2_01774828963.jpg)
![Nyáregyháza, 93 m2, 82990000 HUF, 4 szoba [4138_936] Nyáregyháza, 93 m2, 82990000 HUF, 4 szoba [4138_936]](/hirdetesek/ads_new_xml2/16/160517/thmb_nyaregyhaza-93-m2_11774828963.jpg)
![Nyáregyháza, 93 m2, 82990000 HUF, 4 szoba [4138_936] Nyáregyháza, 93 m2, 82990000 HUF, 4 szoba [4138_936]](/hirdetesek/ads_new_xml2/16/160517/thmb_nyaregyhaza-93-m2_21774828963.jpg)
![Nyáregyháza, 93 m2, 82990000 HUF, 4 szoba [4138_936] Nyáregyháza, 93 m2, 82990000 HUF, 4 szoba [4138_936]](/hirdetesek/ads_new_xml2/16/160517/thmb_nyaregyhaza-93-m2_31774828963.jpg)
![Nyáregyháza, 93 m2, 82990000 HUF, 4 szoba [4138_936] Nyáregyháza, 93 m2, 82990000 HUF, 4 szoba [4138_936]](/hirdetesek/ads_new_xml2/16/160517/thmb_nyaregyhaza-93-m2_41774828963.jpg)


