
Csévharaszt, 93 m2, 84990000 HUF, 4 szoba [4138_937]
ÚJ ÉPÍTÉSŰ, PRÉMIUM MINŐSÉGŰ, ENERGIATAKARÉKOS CSALÁDI HÁZ NAGY TELEKKEL ?
CSÉVHARASZTONOTTHONSTART HITELRE ALKALMAS ? DÍJMENTES HITELÜGYINTÉZÉSSELKépzelje
el, hogy egy modern, alacsony fenntartású otthonban él, nyugodt környezetben,
mégis Budapesttől gyorsan elérhető távolságra.Csévharaszton most megvalósíthatja
ezt ? új építésű, átgondolt kialakítású családi ház várja.Eladás &
ÉrtékbecslésNem adta el az ingatlanát? Ne adja el piaci ár alatt! Minden
ügyfelünknek ingyenesen felmérjük az otthonát, hogy biztos lehessen abban,
valódi érték alapján dönt.Hívjon vagy írjon nekünk a további információkért és a
díjmentes* felmérésért.ELHELYEZKEDÉS ÉS KÖZLEKEDÉS? Új parcellázású, rendezett,
családi házas övezet? Csendes, jól lakott környezet? Monorierdő vasútállomás ~16
perc? Budapest elérhető akár ~20 perc alattIdeális választás azoknak, akik
nyugalmat keresnek, de nem akarnak elszakadni a várostól.TELEK ÉS ELRENDEZÉS?
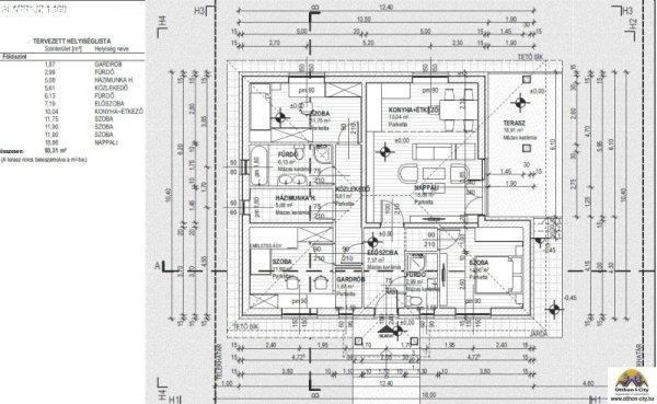
768 m˛-es telek ? bőven elegendő kertnek, pihenésnek vagy akár későbbi
bővítéshez? Tágas, világos nappali amerikai konyhával? 3 külön nyíló hálószoba
(egy közvetlen teraszkapcsolattal)? **2 fürdőszoba** ? kényelmes családi
használatra? Teraszkapcsolatos élettérAz elrendezés praktikus, élhető,
családbarát.PRÉMIUM MŰSZAKI TARTALOMSzerkezet:? 30 cm Porotherm főfalak? 10 cm
válaszfalak (Porotherm / Ytong)? Fa födém, gomba- és rovarvédelemmel? Látszó
szarufa, esztétikus lambériázásSzigetelés:? 10 cm grafitos homlokzati
szigetelés? 12 cm EPS aljzat? Födém: purhab (? 30 cm kőzetgyapot szint)? 6 cm
lábazati szigetelésNYÍLÁSZÁRÓK ÉS BURKOLATOK? 3 rétegű, 6 légkamrás Salamander
nyílászárók? Alumínium redőnyök? Hideg?meleg burkolatok választhatók (5.000
Ft/m˛-ig)? Csúszásmentes, fagyálló kültéri burkolatok? Beltéri ajtók, festett
falak, igényes kivitelezésGÉPÉSZET ? ALACSONY REZSI? Monoblokkos hőszivattyú?
Padlófűtés minden helyiségben? Inverteres hűtő-fűtő klíma? 100 literes Ariston
okos bojler? Teljes vízszűrő rendszerEnergiatakarékos működés ? hosszú távon
jelentős megtakarítás.FÜRDŐSZOBÁK? 2 komplett fürdőszoba? Geberit falba épített
WC? 170×75 cm kád? Épített zuhany folyókával? Mosdók csapteleppelKÜLSŐ
KIALAKÍTÁS? Igényes utcafronti kerítés fa betétekkel? Gyalogos kapu + gépkocsi
beálló? Körbejárható ház (40 cm járda, vízelvezetéssel)? Nagy, jól alakítható
kertMIÉRT EZT VÁLASSZA?? Új építés ? nincs felújítási költség? Prémium műszaki
tartalom? Alacsony fenntartási költség? Nagy telek ? értékálló befektetés?
Nyugodt környezet + gyors városi kapcsolatÁTADÁS? Kulcsrakész átadás: **2026.
július**? Használatbavételi engedély: **2026. ősz**FINANSZÍROZÁS? Otthonstart
hitelre alkalmas? CSOK / hitel ügyintézés teljes körűen? **Díjmentes banki
összehasonlítás**ELADNÁ INGATLANÁT?Ne adja el piaci ár alatt.Kérjen díjmentes
értékbecslést.KAPCSOLATTovábbi információért vagy megtekintésért keressen
bizalommal ? akár hétvégén is!
CSÉVHARASZTONOTTHONSTART HITELRE ALKALMAS ? DÍJMENTES HITELÜGYINTÉZÉSSELKépzelje
el, hogy egy modern, alacsony fenntartású otthonban él, nyugodt környezetben,
mégis Budapesttől gyorsan elérhető távolságra.Csévharaszton most megvalósíthatja
ezt ? új építésű, átgondolt kialakítású családi ház várja.Eladás &
ÉrtékbecslésNem adta el az ingatlanát? Ne adja el piaci ár alatt! Minden
ügyfelünknek ingyenesen felmérjük az otthonát, hogy biztos lehessen abban,
valódi érték alapján dönt.Hívjon vagy írjon nekünk a további információkért és a
díjmentes* felmérésért.ELHELYEZKEDÉS ÉS KÖZLEKEDÉS? Új parcellázású, rendezett,
családi házas övezet? Csendes, jól lakott környezet? Monorierdő vasútállomás ~16
perc? Budapest elérhető akár ~20 perc alattIdeális választás azoknak, akik
nyugalmat keresnek, de nem akarnak elszakadni a várostól.TELEK ÉS ELRENDEZÉS?
768 m˛-es telek ? bőven elegendő kertnek, pihenésnek vagy akár későbbi
bővítéshez? Tágas, világos nappali amerikai konyhával? 3 külön nyíló hálószoba
(egy közvetlen teraszkapcsolattal)? **2 fürdőszoba** ? kényelmes családi
használatra? Teraszkapcsolatos élettérAz elrendezés praktikus, élhető,
családbarát.PRÉMIUM MŰSZAKI TARTALOMSzerkezet:? 30 cm Porotherm főfalak? 10 cm
válaszfalak (Porotherm / Ytong)? Fa födém, gomba- és rovarvédelemmel? Látszó
szarufa, esztétikus lambériázásSzigetelés:? 10 cm grafitos homlokzati
szigetelés? 12 cm EPS aljzat? Födém: purhab (? 30 cm kőzetgyapot szint)? 6 cm
lábazati szigetelésNYÍLÁSZÁRÓK ÉS BURKOLATOK? 3 rétegű, 6 légkamrás Salamander
nyílászárók? Alumínium redőnyök? Hideg?meleg burkolatok választhatók (5.000
Ft/m˛-ig)? Csúszásmentes, fagyálló kültéri burkolatok? Beltéri ajtók, festett
falak, igényes kivitelezésGÉPÉSZET ? ALACSONY REZSI? Monoblokkos hőszivattyú?
Padlófűtés minden helyiségben? Inverteres hűtő-fűtő klíma? 100 literes Ariston
okos bojler? Teljes vízszűrő rendszerEnergiatakarékos működés ? hosszú távon
jelentős megtakarítás.FÜRDŐSZOBÁK? 2 komplett fürdőszoba? Geberit falba épített
WC? 170×75 cm kád? Épített zuhany folyókával? Mosdók csapteleppelKÜLSŐ
KIALAKÍTÁS? Igényes utcafronti kerítés fa betétekkel? Gyalogos kapu + gépkocsi
beálló? Körbejárható ház (40 cm járda, vízelvezetéssel)? Nagy, jól alakítható
kertMIÉRT EZT VÁLASSZA?? Új építés ? nincs felújítási költség? Prémium műszaki
tartalom? Alacsony fenntartási költség? Nagy telek ? értékálló befektetés?
Nyugodt környezet + gyors városi kapcsolatÁTADÁS? Kulcsrakész átadás: **2026.
július**? Használatbavételi engedély: **2026. ősz**FINANSZÍROZÁS? Otthonstart
hitelre alkalmas? CSOK / hitel ügyintézés teljes körűen? **Díjmentes banki
összehasonlítás**ELADNÁ INGATLANÁT?Ne adja el piaci ár alatt.Kérjen díjmentes
értékbecslést.KAPCSOLATTovábbi információért vagy megtekintésért keressen
bizalommal ? akár hétvégén is!
Részletek...
Adatlap
| Ár: | 84.990.000 Ft |
| Település: | Csévharaszt |
| A hirdető: | Ingatlaniroda ajánlatából |
| Értékesítés típusa: | Eladó |
| Használtság: | Új építésű |
| Telek nagysága (m2) : | 768 |
| Épület hasznos területe (m2) : | 93 |
| Szobák száma: | 4 |
| Anyaga: | Egyéb anyagból készült épület |
| A hirdető kérése: | Ingatlanközvetítő vagyok - keresse fel Irodánkat! |
| Feladás dátuma: | 2026.03.30 |
| Eddig megtekintették 6 alkalommal | |
A hirdető adatai
Kapcsolat a hirdetővel...
Családi házak rovaton belül a(z) "Csévharaszt, 93 m2, 84990000 HUF, 4 szoba [4138_937]" című hirdetést látja. (fent)
















![Csévharaszt, 99 m2, 84990000 HUF, 4 szoba [4138_924] Csévharaszt, 99 m2, 84990000 HUF, 4 szoba [4138_924]](/hirdetesek/ads_new_xml2/15/158260/thmb_csevharaszt-99-m2_01770595403.jpg)
![Csévharaszt, 92 m2, 84990000 HUF, 4 szoba [4138_923] Csévharaszt, 92 m2, 84990000 HUF, 4 szoba [4138_923]](/hirdetesek/ads_new_xml2/15/158259/thmb_csevharaszt-92-m2_01770595403.jpg)
![Nyáregyháza, 93 m2, 82990000 HUF, 4 szoba [4138_936] Nyáregyháza, 93 m2, 82990000 HUF, 4 szoba [4138_936]](/hirdetesek/ads_new_xml2/16/160517/thmb_nyaregyhaza-93-m2_01774828963.jpg)
![Kecskemét, 93 m2, 94900000 HUF, 3 szoba [2870_1599] Kecskemét, 93 m2, 94900000 HUF, 3 szoba [2870_1599]](/hirdetesek/ads_new_xml2/15/158859/thmb_kecskemet-93-m2-94_01771804985.jpg)
![Budapest XVIII., 136 m2, 150000000 HUF, 5 szoba [4138_905] Budapest XVIII., 136 m2, 150000000 HUF, 5 szoba [4138_905]](/hirdetesek/ads_new_xml2/15/152157/thmb_budapest-xviii-136_01757894581.jpg)
![Csévharaszt, 93 m2, 84990000 HUF, 4 szoba [4138_937] Csévharaszt, 93 m2, 84990000 HUF, 4 szoba [4138_937]](/hirdetesek/ads_new_xml2/16/160518/thmb_csevharaszt-93-m2_01774828963.jpg)
![Csévharaszt, 93 m2, 84990000 HUF, 4 szoba [4138_937] Csévharaszt, 93 m2, 84990000 HUF, 4 szoba [4138_937]](/hirdetesek/ads_new_xml2/16/160518/thmb_csevharaszt-93-m2_11774828963.jpg)
![Csévharaszt, 93 m2, 84990000 HUF, 4 szoba [4138_937] Csévharaszt, 93 m2, 84990000 HUF, 4 szoba [4138_937]](/hirdetesek/ads_new_xml2/16/160518/thmb_csevharaszt-93-m2_21774828963.jpg)
![Csévharaszt, 93 m2, 84990000 HUF, 4 szoba [4138_937] Csévharaszt, 93 m2, 84990000 HUF, 4 szoba [4138_937]](/hirdetesek/ads_new_xml2/16/160518/thmb_csevharaszt-93-m2_31774828963.jpg)
![Csévharaszt, 93 m2, 84990000 HUF, 4 szoba [4138_937] Csévharaszt, 93 m2, 84990000 HUF, 4 szoba [4138_937]](/hirdetesek/ads_new_xml2/16/160518/thmb_csevharaszt-93-m2_41774828963.jpg)


