
Új építésű társasházi lakások Újszászon!
A CasaNetWork Ingatlanhálózat kínálatában eladó épülő ikerházak Újszászon! Az
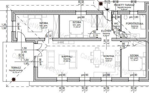
ingatlan hirdetési azonosítója: 174602084A hirdetett lakás: A. lakás: fűtött
lakótér: 90,12 nm + 20,95 nm teraszA ház modern technológiával, kiváló minőségű
anyagokból készül: Phorotherm 30-as falazat kiváló hőszigetelő képességekkel
rendelkezik, így télen-nyáron komfortos hőmérsékletet biztosít. A nyílászárók
hő- és hangszigetelő műanyag ablakok, amelyek fokozzák az energiahatékonyságot,
és kellemes belső klímát teremtenek.A fűtésről hőszivattyús fűtés gondoskodik
padlófűtéssel. A nyári hőséget lakásonként 1 db inverteres klímaberendezés teszi
elviselhetővé.Az ikerházakhoz saját kertrész és autóbeálló tartozik.Ez az otthon
minden műszaki és kényelmi igényt kielégít, amit a modern családi élet
megkövetel.Főbb jellemzők:Tágas belső tér: 2 szoba, nappali-konyha,
fürdőszoba+Wc, külön WC, háztartási helyiség, előtér és terasz.Minőségi
burkolatok: Laminált parketta melegburkolatként, választható mintázattal.
Hidegburkolat: padlólap, legfeljebb 6.000 Ft/m˛ értékben.Modern nyílászárók:
Műanyag ablakok hő- és hangszigetelő, 3 rétegű üvegezéssel, erkélyajtók ? a
lakás szellőztetése a tulajdonos feladata.Felszerelt fürdő és konyha: Kád vagy
tusoló, kézmosó a fürdőben, wcKorszerű fűtési rendszer: hőszivattyús fűtés,
padlófűtés és radiátoros fűtés kombinációja.Klíma: Inverteres klímaberendezés a
kellemes nyári hőmérsékletért.Biztonságos bejárat: többpontos zárral ellátott
biztonsági ajtó.Energetikai besorolása: A++Műszaki adatok:Válaszfalak: 10 cm-es
tégla, kiváló hang- és hőszigeteléssel.Tető: Azzurro betoncserépKözművek: Gáz,
víz, villany, csatornaVárható átadás: 2026 nyár elejeAz ingatlan műszaki tervei
alapján hirdetjük meg. Kérjük, vegye figyelembe, hogy a használatbavételi
engedély kiadását követően kisebb m˛-eltérések előfordulhatnak.Amennyiben a
CasaNetWork Cegléd által kínált, 174602084 azonosítószámú téglalakás, vagy
bármely más ingatlan felkeltette érdeklődését, keressen bizalommal a megadott
telefonszámon!Felhívjuk figyelmét, hogy a hirdetésben szereplő adatok a
megbízótól származnak, azok pontosságáért felelősséget nem vállalunk.Ügyfeleink
részére díjmentes, bankfüggetlen hitelügyintézést biztosítunk! 2025
augusztusától elérhetőek a 3%-os lakáshitelek első lakásvásárlóknak!CasaNetWork
? Ingatlanban otthon vagyunk.
ingatlan hirdetési azonosítója: 174602084A hirdetett lakás: A. lakás: fűtött
lakótér: 90,12 nm + 20,95 nm teraszA ház modern technológiával, kiváló minőségű
anyagokból készül: Phorotherm 30-as falazat kiváló hőszigetelő képességekkel
rendelkezik, így télen-nyáron komfortos hőmérsékletet biztosít. A nyílászárók
hő- és hangszigetelő műanyag ablakok, amelyek fokozzák az energiahatékonyságot,
és kellemes belső klímát teremtenek.A fűtésről hőszivattyús fűtés gondoskodik
padlófűtéssel. A nyári hőséget lakásonként 1 db inverteres klímaberendezés teszi
elviselhetővé.Az ikerházakhoz saját kertrész és autóbeálló tartozik.Ez az otthon
minden műszaki és kényelmi igényt kielégít, amit a modern családi élet
megkövetel.Főbb jellemzők:Tágas belső tér: 2 szoba, nappali-konyha,
fürdőszoba+Wc, külön WC, háztartási helyiség, előtér és terasz.Minőségi
burkolatok: Laminált parketta melegburkolatként, választható mintázattal.
Hidegburkolat: padlólap, legfeljebb 6.000 Ft/m˛ értékben.Modern nyílászárók:
Műanyag ablakok hő- és hangszigetelő, 3 rétegű üvegezéssel, erkélyajtók ? a
lakás szellőztetése a tulajdonos feladata.Felszerelt fürdő és konyha: Kád vagy
tusoló, kézmosó a fürdőben, wcKorszerű fűtési rendszer: hőszivattyús fűtés,
padlófűtés és radiátoros fűtés kombinációja.Klíma: Inverteres klímaberendezés a
kellemes nyári hőmérsékletért.Biztonságos bejárat: többpontos zárral ellátott
biztonsági ajtó.Energetikai besorolása: A++Műszaki adatok:Válaszfalak: 10 cm-es
tégla, kiváló hang- és hőszigeteléssel.Tető: Azzurro betoncserépKözművek: Gáz,
víz, villany, csatornaVárható átadás: 2026 nyár elejeAz ingatlan műszaki tervei
alapján hirdetjük meg. Kérjük, vegye figyelembe, hogy a használatbavételi
engedély kiadását követően kisebb m˛-eltérések előfordulhatnak.Amennyiben a
CasaNetWork Cegléd által kínált, 174602084 azonosítószámú téglalakás, vagy
bármely más ingatlan felkeltette érdeklődését, keressen bizalommal a megadott
telefonszámon!Felhívjuk figyelmét, hogy a hirdetésben szereplő adatok a
megbízótól származnak, azok pontosságáért felelősséget nem vállalunk.Ügyfeleink
részére díjmentes, bankfüggetlen hitelügyintézést biztosítunk! 2025
augusztusától elérhetőek a 3%-os lakáshitelek első lakásvásárlóknak!CasaNetWork
? Ingatlanban otthon vagyunk.
Részletek...
Adatlap
| Ár: | 79.999.000 Ft |
| Település: | Újszász |
| A hirdető: | Ingatlaniroda ajánlatából |
| Értékesítés típusa: | Eladó |
| Használtság: | Új építésű |
| Telek nagysága (m2) : | 200 |
| Épület hasznos területe (m2) : | 101.00 |
| Szobák száma: | 4 |
| Feladás dátuma: | 2026.05.10 |
| Eddig megtekintették 64 alkalommal | |
A hirdető adatai
Kapcsolat a hirdetővel...
Családi házak rovaton belül a(z) "Új építésű társasházi lakások Újszászon!" című hirdetést látja. (fent)




























