
Eladó családi ház Zalaegerszeg, Zalaegerszeg, Csács
Eladó PRÉMIUM CSALÁDI HÁZ ÚJ KIVITELEZŐTŐL!? Zalaegerszeg, csácsi városrészében
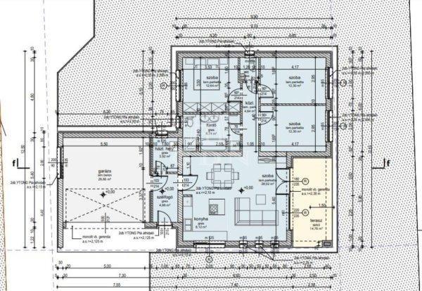
egy 150 m2-es, új építésű, korszerű kialakítású alacsony rezsivel rendelkező
családi ház eladó! ?Az ingatlan helyiségei:- amerikai konyhás nappali étkezővel-
3 szoba-fürdőszoba plusz WC-WC-előszoba-közlekedő-háztartási helység-dupla
garázs-teraszMűszaki információk:- 30-as tégla falazat- 15 cm-es szigetelés- 3
rétegű műanyag nyílászárók redőnnyel ellátva- hőszivattyús fűtésrendszer
(padlófűtés)- 1 db inverteres klíma- választható hideg-meleg burkolatokTovábbi
jellemzők, extrák:A vételár tartalmazza a tereprendezést, a kerítés kialakítását
és a térkövezést egyaránt.Délnyugati tájolásának megfelelően tágas terei
napfényesek és világosak szinte egész nap.Csendes, családi lakóövezet, egy
szintes kialakítással.CSOK és egyéb illetékkedvezmények egyaránt igénybe
vehetők!A hirdetésben szereplő képek látványtervek.Amennyiben az ingatlan
elnyerte tetszését és megtekintené, keressen bizalommal!Irodánk ingyenes
hiteltanácsadással és hitelügyintézéssel, kedvező díjszabású ügyvéddel és
energetikai tanúsítvány elkészítésével várja az ügyfeleket. ...TOVÁBBI,
TÖBBEZRES INGATLAN KÍNÁLAT: www.gdn-ingatlan.hu - GDN azonosító: 351238
egy 150 m2-es, új építésű, korszerű kialakítású alacsony rezsivel rendelkező
családi ház eladó! ?Az ingatlan helyiségei:- amerikai konyhás nappali étkezővel-
3 szoba-fürdőszoba plusz WC-WC-előszoba-közlekedő-háztartási helység-dupla
garázs-teraszMűszaki információk:- 30-as tégla falazat- 15 cm-es szigetelés- 3
rétegű műanyag nyílászárók redőnnyel ellátva- hőszivattyús fűtésrendszer
(padlófűtés)- 1 db inverteres klíma- választható hideg-meleg burkolatokTovábbi
jellemzők, extrák:A vételár tartalmazza a tereprendezést, a kerítés kialakítását
és a térkövezést egyaránt.Délnyugati tájolásának megfelelően tágas terei
napfényesek és világosak szinte egész nap.Csendes, családi lakóövezet, egy
szintes kialakítással.CSOK és egyéb illetékkedvezmények egyaránt igénybe
vehetők!A hirdetésben szereplő képek látványtervek.Amennyiben az ingatlan
elnyerte tetszését és megtekintené, keressen bizalommal!Irodánk ingyenes
hiteltanácsadással és hitelügyintézéssel, kedvező díjszabású ügyvéddel és
energetikai tanúsítvány elkészítésével várja az ügyfeleket. ...TOVÁBBI,
TÖBBEZRES INGATLAN KÍNÁLAT: www.gdn-ingatlan.hu - GDN azonosító: 351238
Részletek...
Adatlap
| Ár: | 119.000.000 Ft |
| Település: | Zalaegerszeg |
| A hirdető: | Ingatlaniroda ajánlatából |
| Értékesítés típusa: | Eladó |
| Használtság: | Új építésű |
| Utca: | Zalaegerszeg, Csács |
| Telek nagysága (m2) : | 520 |
| Épület hasznos területe (m2) : | 130 |
| Szobák száma: | 4 |
| Anyaga: | Tégla |
| A hirdető kérése: | Ingatlanközvetítő vagyok - keresse fel Irodánkat! |
| Feladás dátuma: | 2026.01.08 |
| Eddig megtekintették 44 alkalommal | |
A hirdető adatai
Kapcsolat a hirdetővel...
Családi házak rovaton belül a(z) "Eladó családi ház Zalaegerszeg, Zalaegerszeg, Csács" című hirdetést látja. (fent)




























