
Eladó családi ház Iszkaszentgyörgy, Márványkert szomszédság
Vh-004402 Iszkaszentgyörgyön, a Márványkert szomszédságában, csendes, kedvelt
részen egyszintes, igényes és egyedi kivitelezésű nappali+ 3 szobás, A+
energetikai besorolású, újépítésű ikerházi egység saját 460m2-es telken, 2026
ÁPRILISI ÁTADÁSSAL eladó!Az ingatlan könnyen megközelíthető, a környék
tömegközlekedése jó, a településen minden elérhető, ami a kényelmes életvitelhez
elengedhetetlen ( orvosi rendelő, gyógyszertár, posta, bölcsőde, óvoda,
polgármesteri hivatal, boltok, piac, fitness-terem, tanösvény, Kastély Park,
sportpálya, szépészeti szolgáltatások, kutyaiskola és panzió, cukrászdák).A ház
tágas, világos, körbe napozott, a mai kor igényszintjének megfelelő, minőségi
anyagokból, korszerű dizájnnal és kialakítással készül.Műszaki paraméterek:- a
homlokzati falak 30 cm vastag Viablokk falazatúak 10cm vastag szigeteléssel, a
válaszfalak szintén nem könnyített szerkezetűek- a lábazat 5cm vastag XPS
szigetelést kap- a tetőszerkezet szeglemezes, könnyített födém készül Isocell
cellulóz szigeteléssel, Bramac beton cserép fedéssel. ( a padlástér felár
ellenében opcionálisan rakodhatóvá/járhatóvá tehető)- A fűtést hőszivattyú
biztosítja padlófűtéses hőleadással, melynek köszönhetően a ház H-tarifás
kedvezményben részesül fűtési szezonban.- a nyílászárók műanyagok, 6 kamrás, 3
rétegű üvegezésűekA ház hideg,-meleg burkolatjai, szaniterei, nyílászárók
színei, homlokzati színei előre megadott ár kategóriákon belül
választhatók.(Egyéb speciális munkák kivitelezésének igénye (pl: klíma, szellőző
rendszer, központi porszívó, kandalló, kémény kialakítás, víztisztító kiállás
stb.) külön egyeztetést igényel)(részletes műszaki leírás igényével
kapcsolatban, kérem írjon üzenetet)Elosztását tekintve 103 m2 hasznos
alapterületűElőszoba, amerikai konyhás nappali kamrával, 3db 9m2-es hálószoba,
vendég wc és háztartási helyiség kerül kialakításra. A házhoz kapcsolódik egy
fedett terasz és egy 21m2-es terasz.Fontosabb paraméterek:? 2026 év áprilisi
átadás? 460 m2 önálló telekterület? Nappali + 3 hálószoba? H tarifás villany?
Hőszivattyú? Alacsony rezsiköltségMegbízható és tapasztalt ingatlanfejlesztő,
kivitelező jegyzi a ház építését, számtalan referenciaépülettel rendelkezik. A
vásárláshoz, a jelenleg aktuális családok ?újépítésű? otthonteremtésére
vonatkozó összes támogatás igénybe vehető.AZ INGATLAN ALKALMAS 5%-os ÁFA, Otthon
Start (3%-os), CSOK, CSOK HITEL IGÉNYBEVÉTELÉRE!Eladási irányár: 79,9 M
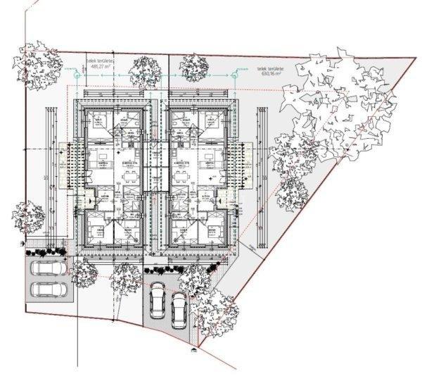
FtELÉRHETŐ SZABAD HÁZAK:,,A" IKERHÁZ (2026 áprilisi átadás)- 1. LAKÓEGYSÉG -----
(CSAK A KÜLSŐ TÁROLÓ FALA KÖZÖS A SZOMSZÉDOS LAKÓEGYSÉGGEL)ÖSSZESEN 116m2 -----
NAPPALI+ 3 SZOBA ----- 630m2 TELEK81 900 000 FORINT- 2. LAKÓEGYSÉG ----- (CSAK A
KÜLSŐ TÁROLÓ FALA KÖZÖS A SZOMSZÉDOS LAKÓEGYSÉGGEL)ÖSSZESEN 116m2 ----- NAPPALI+
3 SZOBA ----- 481m2 TELEK79 900 000 FORINT,,B" IKERHÁZ (2026 év végi átadás)- 1.
LAKÓEGYSÉGÖSSZESEN 127m2 ----- NAPPALI +3 SZOBA ----- 593m2 TELEK81 900 000
FORINT- 2. LAKÓEGYSÉGÖSSZESEN 127m2 ----- NAPPALI +3 SZOBA ----- 460m2 TELEK79
900 000 FORINTÖNÁLLÓ HÁZ (2026 áprilisi átadás)ÖSSZESEN 131m2 ----- NAPPALI +4
SZOBA ----- 1106m2 TELEK95 000 000 FORINTAz ingatlan adottságainak, fekvésének
köszönhetően alkalmas továbbá vállalkozásra, üzleti vagy befektetési célra,
hiszen akár bérbe adható, vagy üzlet, szolgáltatás (pl: orvosi rendelő, fodrász,
kozmetika, irodai tevékenység,(Csendes tevékenység engedélyezett).Ha felkeltette
érdeklődését, hívjon bizalommal, éljen ingyenes, személyre szabott
hitelügyintézés szolgáltatásunkkal. Segítünk továbbá adásvételhez szükséges
ügyvédi közreműködésben, energetikai tanúsítvány, valamint értékbecslés
elkészítésében.For English information please send a message. ...TOVÁBBI,
TÖBBEZRES INGATLAN KÍNÁLAT: www.gdn-ingatlan.hu - GDN azonosító: 380879
részen egyszintes, igényes és egyedi kivitelezésű nappali+ 3 szobás, A+
energetikai besorolású, újépítésű ikerházi egység saját 460m2-es telken, 2026
ÁPRILISI ÁTADÁSSAL eladó!Az ingatlan könnyen megközelíthető, a környék
tömegközlekedése jó, a településen minden elérhető, ami a kényelmes életvitelhez
elengedhetetlen ( orvosi rendelő, gyógyszertár, posta, bölcsőde, óvoda,
polgármesteri hivatal, boltok, piac, fitness-terem, tanösvény, Kastély Park,
sportpálya, szépészeti szolgáltatások, kutyaiskola és panzió, cukrászdák).A ház
tágas, világos, körbe napozott, a mai kor igényszintjének megfelelő, minőségi
anyagokból, korszerű dizájnnal és kialakítással készül.Műszaki paraméterek:- a
homlokzati falak 30 cm vastag Viablokk falazatúak 10cm vastag szigeteléssel, a
válaszfalak szintén nem könnyített szerkezetűek- a lábazat 5cm vastag XPS
szigetelést kap- a tetőszerkezet szeglemezes, könnyített födém készül Isocell
cellulóz szigeteléssel, Bramac beton cserép fedéssel. ( a padlástér felár
ellenében opcionálisan rakodhatóvá/járhatóvá tehető)- A fűtést hőszivattyú
biztosítja padlófűtéses hőleadással, melynek köszönhetően a ház H-tarifás
kedvezményben részesül fűtési szezonban.- a nyílászárók műanyagok, 6 kamrás, 3
rétegű üvegezésűekA ház hideg,-meleg burkolatjai, szaniterei, nyílászárók
színei, homlokzati színei előre megadott ár kategóriákon belül
választhatók.(Egyéb speciális munkák kivitelezésének igénye (pl: klíma, szellőző
rendszer, központi porszívó, kandalló, kémény kialakítás, víztisztító kiállás
stb.) külön egyeztetést igényel)(részletes műszaki leírás igényével
kapcsolatban, kérem írjon üzenetet)Elosztását tekintve 103 m2 hasznos
alapterületűElőszoba, amerikai konyhás nappali kamrával, 3db 9m2-es hálószoba,
vendég wc és háztartási helyiség kerül kialakításra. A házhoz kapcsolódik egy
fedett terasz és egy 21m2-es terasz.Fontosabb paraméterek:? 2026 év áprilisi
átadás? 460 m2 önálló telekterület? Nappali + 3 hálószoba? H tarifás villany?
Hőszivattyú? Alacsony rezsiköltségMegbízható és tapasztalt ingatlanfejlesztő,
kivitelező jegyzi a ház építését, számtalan referenciaépülettel rendelkezik. A
vásárláshoz, a jelenleg aktuális családok ?újépítésű? otthonteremtésére
vonatkozó összes támogatás igénybe vehető.AZ INGATLAN ALKALMAS 5%-os ÁFA, Otthon
Start (3%-os), CSOK, CSOK HITEL IGÉNYBEVÉTELÉRE!Eladási irányár: 79,9 M
FtELÉRHETŐ SZABAD HÁZAK:,,A" IKERHÁZ (2026 áprilisi átadás)- 1. LAKÓEGYSÉG -----
(CSAK A KÜLSŐ TÁROLÓ FALA KÖZÖS A SZOMSZÉDOS LAKÓEGYSÉGGEL)ÖSSZESEN 116m2 -----
NAPPALI+ 3 SZOBA ----- 630m2 TELEK81 900 000 FORINT- 2. LAKÓEGYSÉG ----- (CSAK A
KÜLSŐ TÁROLÓ FALA KÖZÖS A SZOMSZÉDOS LAKÓEGYSÉGGEL)ÖSSZESEN 116m2 ----- NAPPALI+
3 SZOBA ----- 481m2 TELEK79 900 000 FORINT,,B" IKERHÁZ (2026 év végi átadás)- 1.
LAKÓEGYSÉGÖSSZESEN 127m2 ----- NAPPALI +3 SZOBA ----- 593m2 TELEK81 900 000
FORINT- 2. LAKÓEGYSÉGÖSSZESEN 127m2 ----- NAPPALI +3 SZOBA ----- 460m2 TELEK79
900 000 FORINTÖNÁLLÓ HÁZ (2026 áprilisi átadás)ÖSSZESEN 131m2 ----- NAPPALI +4
SZOBA ----- 1106m2 TELEK95 000 000 FORINTAz ingatlan adottságainak, fekvésének
köszönhetően alkalmas továbbá vállalkozásra, üzleti vagy befektetési célra,
hiszen akár bérbe adható, vagy üzlet, szolgáltatás (pl: orvosi rendelő, fodrász,
kozmetika, irodai tevékenység,(Csendes tevékenység engedélyezett).Ha felkeltette
érdeklődését, hívjon bizalommal, éljen ingyenes, személyre szabott
hitelügyintézés szolgáltatásunkkal. Segítünk továbbá adásvételhez szükséges
ügyvédi közreműködésben, energetikai tanúsítvány, valamint értékbecslés
elkészítésében.For English information please send a message. ...TOVÁBBI,
TÖBBEZRES INGATLAN KÍNÁLAT: www.gdn-ingatlan.hu - GDN azonosító: 380879
Részletek...
Adatlap
| Ár: | 79.900.000 Ft |
| Település: | Iszkaszentgyörgy |
| A hirdető: | Ingatlaniroda ajánlatából |
| Értékesítés típusa: | Eladó |
| Használtság: | Új építésű |
| Utca: | Márványkert szomszédságában |
| Telek nagysága (m2) : | 460 |
| Épület hasznos területe (m2) : | 127 |
| Szobák száma: | 4 |
| Ingatlan állapota: | Normál állapotú |
| Anyaga: | Tégla |
| A hirdető kérése: | Ingatlanközvetítő vagyok - keresse fel Irodánkat! |
| Feladás dátuma: | 2026.05.08 |
| Eddig megtekintették 63 alkalommal | |
A hirdető adatai
Kapcsolat a hirdetővel...
Családi házak rovaton belül a(z) "Eladó családi ház Iszkaszentgyörgy, Márványkert szomszédság" című hirdetést látja. (fent)




























