
Eladó ikerház Budapest, XXII. kerület, Bp. XXII. Ikerház el
Eladásra kínáljuk Budapest, XXII. kerületében, Nagytétényben épülő, 2 lakásos,
kétszintes ikerház baloldali lakását melyek saját kerthasználattal kerülnek
kialalakításra.Az ikerház kertvárosias környezetben helyezkedik el, lakásonként
bruttó 102 m2 alapterülettel, utcafronttól beljebb kerülnek
megépítésre.Lakásonként nappali+4 szoba lesz kialakítva, fürdőszoba mindkét
szinten megtalálható.A lakások fűtése és melegvíz ellátása hőszivattyúval fog
történni, ezzel a fenntartási költség kiváló és környezetbarát is.A ház modern
kialakítása és magas műszaki tartalma minden igényt kielégít.Helyiség
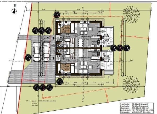
kimutatás:1.sz.lakásFöldszintElőszoba kerámia 4,94 m2Nappali-étkező lam.padló
25,17 m2Konyha kerámia 4,60 m2Házt.h. kerámia 3,10 m2Szoba lam.padló 8,14
m2TetőtérEt.gard. lam.padló 3,09 m2Fürdő kerámia 5,42 m2Szoba lam.padló 10,34
m2Szoba lam.padló 10,57 m2Szoba lam.padló 9,09 m2Összesen: 84,45
m2+teraszok2.sz.lakásFöldszintElőszoba kerámia 4,94 m2Nappali-étkező lam.padló
25,17 m2Konyha kerámia 4,60 m2Házt.h. kerámia 3,10 m2Szoba lam.padló 8,14
m2TetőtérEt.gard. lam.padló 3,09 m2Fürdő kerámia 5,42 m2Szoba lam.padló 10,34
m2Szoba lam.padló 10,57 m2Szoba lam.padló 9,09 m2Összesen: 84,45
m2+teraszokÉrdeklődés esetén a műszaki- és egyéb leírásokat rendelkezésre tudjuk
bocsátani!Foglalja le most, fizesse ki később!Élvezze a nyugalom és a kényelem
tökéletes kombinációját ebben az elegáns otthonban. Tökéletes választás lehet
azok számára, akik egy új, karbantartás mentes otthonra vágynak.Várható átadás:
2026. I. negyedévINGYENES hitel tanácsadás, CSOK Plusz ügyintézés!BANKFÜGGETLEN
hitelcentrumunk az összes elérhető bank és hitelintézet ajánlatát versenyezteti
az Ön kedvéért, ráadásul DÍJMENTESEN.- Egyedi, bankfiókban nem elérhető kamat-
és díjkedvezmények- Hitelképesség vizsgálat- Idő, energia és pénz megtakarítás-
Teljes hivatali ügyintézésAmennyiben hirdetésem felkeltette az érdeklődését vagy
egyéb információra van szüksége hívjon bizalommal! ...TOVÁBBI, TÖBBEZRES
INGATLAN KÍNÁLAT: www.gdn-ingatlan.hu - GDN azonosító: 382249
kétszintes ikerház baloldali lakását melyek saját kerthasználattal kerülnek
kialalakításra.Az ikerház kertvárosias környezetben helyezkedik el, lakásonként
bruttó 102 m2 alapterülettel, utcafronttól beljebb kerülnek
megépítésre.Lakásonként nappali+4 szoba lesz kialakítva, fürdőszoba mindkét
szinten megtalálható.A lakások fűtése és melegvíz ellátása hőszivattyúval fog
történni, ezzel a fenntartási költség kiváló és környezetbarát is.A ház modern
kialakítása és magas műszaki tartalma minden igényt kielégít.Helyiség
kimutatás:1.sz.lakásFöldszintElőszoba kerámia 4,94 m2Nappali-étkező lam.padló
25,17 m2Konyha kerámia 4,60 m2Házt.h. kerámia 3,10 m2Szoba lam.padló 8,14
m2TetőtérEt.gard. lam.padló 3,09 m2Fürdő kerámia 5,42 m2Szoba lam.padló 10,34
m2Szoba lam.padló 10,57 m2Szoba lam.padló 9,09 m2Összesen: 84,45
m2+teraszok2.sz.lakásFöldszintElőszoba kerámia 4,94 m2Nappali-étkező lam.padló
25,17 m2Konyha kerámia 4,60 m2Házt.h. kerámia 3,10 m2Szoba lam.padló 8,14
m2TetőtérEt.gard. lam.padló 3,09 m2Fürdő kerámia 5,42 m2Szoba lam.padló 10,34
m2Szoba lam.padló 10,57 m2Szoba lam.padló 9,09 m2Összesen: 84,45
m2+teraszokÉrdeklődés esetén a műszaki- és egyéb leírásokat rendelkezésre tudjuk
bocsátani!Foglalja le most, fizesse ki később!Élvezze a nyugalom és a kényelem
tökéletes kombinációját ebben az elegáns otthonban. Tökéletes választás lehet
azok számára, akik egy új, karbantartás mentes otthonra vágynak.Várható átadás:
2026. I. negyedévINGYENES hitel tanácsadás, CSOK Plusz ügyintézés!BANKFÜGGETLEN
hitelcentrumunk az összes elérhető bank és hitelintézet ajánlatát versenyezteti
az Ön kedvéért, ráadásul DÍJMENTESEN.- Egyedi, bankfiókban nem elérhető kamat-
és díjkedvezmények- Hitelképesség vizsgálat- Idő, energia és pénz megtakarítás-
Teljes hivatali ügyintézésAmennyiben hirdetésem felkeltette az érdeklődését vagy
egyéb információra van szüksége hívjon bizalommal! ...TOVÁBBI, TÖBBEZRES
INGATLAN KÍNÁLAT: www.gdn-ingatlan.hu - GDN azonosító: 382249
Részletek...
Adatlap
| Ár: | 130.000.000 Ft |
| Település: | XXII. kerület |
| A hirdető: | Ingatlaniroda ajánlatából |
| Értékesítés típusa: | Eladó |
| Használtság: | Új építésű |
| Utca: | Bp. XXII. Ikerház eladó |
| Telek nagysága (m2) : | 672 |
| Épület hasznos területe (m2) : | 102 |
| Szobák száma: | 4 |
| Félszobák száma: | 1 |
| Anyaga: | Tégla |
| A hirdető kérése: | Ingatlanközvetítő vagyok - keresse fel Irodánkat! |
| Feladás dátuma: | 2026.01.08 |
| Eddig megtekintették 39 alkalommal | |
A hirdető adatai
Kapcsolat a hirdetővel...
Családi házak rovaton belül a(z) "Eladó ikerház Budapest, XXII. kerület, Bp. XXII. Ikerház el" című hirdetést látja. (fent)




























