
Eladó családi ház Mogyoród, Szadai út
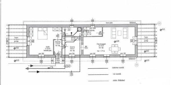
KÜLÖNLEGES LEHETŐSÉG MOGYORÓDON ! ! !ÖNÁLLÓ CSALÁDI HÁZ 2 TERASSZAL ! ! !78,39
nm (EGY SZINTEN!) + 2(!) x 16,5 nm terasz kb. 370 nm-es telekrész. A 2 TERASZ
KÜLÖNLEGES ÉLETÉRZÉST BIZTOSÍT, HISZEN EGYIK KELETI, MÁSIK NYUGATI FEKVÉSŰ!A
reggeli napsugaraknál kávézhatunk és az esti lenyugvó nap fényénél akár
borozhatunk is.Eredeti tervek szerint is kérhető, de kérhető plusz 1 szobával,
tehát 2 vagy 3 szobásként is, vagy beépített tetőtérrel! /Természetesen ez plusz
költség/Alapból fa födém, de kérhető vasbeton födémmel is (plusz költség).A
kivitelező több referánciával is rendelkezik, korábbi munkái, akár félkész, akár
kulcsrakész állapotban megtekinthetőek.KIVÁLÓ LÓKÁCIÓ:- Autópálya felhajtó pár
percre!- Buszmegálló gyalog pár percre!- HÉV megálló gyalog pár percre
található!HÍVJON A RÉSZLETEKÉRT, NE MARADJON LE RÓLA!Tervezett átadás: 2026.
június. NEM A KIVITELEZŐTŐL FÜGG, Ő 6 HÓNAP ALATT MEGÉPÍTI!A napelem
illusztráció, feláras.U.I.: A képek ugyanazon beruházó által készített hasonló
ingatlanban készültek! Az alaprajz a valóságnak 100%-ban megfelelő. ...TOVÁBBI,
TÖBBEZRES INGATLAN KÍNÁLAT: www.gdn-ingatlan.hu - GDN azonosító: 387163
nm (EGY SZINTEN!) + 2(!) x 16,5 nm terasz kb. 370 nm-es telekrész. A 2 TERASZ
KÜLÖNLEGES ÉLETÉRZÉST BIZTOSÍT, HISZEN EGYIK KELETI, MÁSIK NYUGATI FEKVÉSŰ!A
reggeli napsugaraknál kávézhatunk és az esti lenyugvó nap fényénél akár
borozhatunk is.Eredeti tervek szerint is kérhető, de kérhető plusz 1 szobával,
tehát 2 vagy 3 szobásként is, vagy beépített tetőtérrel! /Természetesen ez plusz
költség/Alapból fa födém, de kérhető vasbeton födémmel is (plusz költség).A
kivitelező több referánciával is rendelkezik, korábbi munkái, akár félkész, akár
kulcsrakész állapotban megtekinthetőek.KIVÁLÓ LÓKÁCIÓ:- Autópálya felhajtó pár
percre!- Buszmegálló gyalog pár percre!- HÉV megálló gyalog pár percre
található!HÍVJON A RÉSZLETEKÉRT, NE MARADJON LE RÓLA!Tervezett átadás: 2026.
június. NEM A KIVITELEZŐTŐL FÜGG, Ő 6 HÓNAP ALATT MEGÉPÍTI!A napelem
illusztráció, feláras.U.I.: A képek ugyanazon beruházó által készített hasonló
ingatlanban készültek! Az alaprajz a valóságnak 100%-ban megfelelő. ...TOVÁBBI,
TÖBBEZRES INGATLAN KÍNÁLAT: www.gdn-ingatlan.hu - GDN azonosító: 387163
Részletek...
Adatlap
| Ár: | 82.000.000 Ft |
| Település: | Mogyoród |
| A hirdető: | Ingatlaniroda ajánlatából |
| Értékesítés típusa: | Eladó |
| Használtság: | Új építésű |
| Utca: | Szadai út |
| Telek nagysága (m2) : | 370 |
| Épület hasznos területe (m2) : | 111 |
| Szobák száma: | 3 |
| Fűtés: | Cirkó fűtéses |
| Anyaga: | Tégla |
| A hirdető kérése: | Ingatlanközvetítő vagyok - keresse fel Irodánkat! |
| Feladás dátuma: | 2026.01.13 |
| Eddig megtekintették 37 alkalommal | |
A hirdető adatai
Kapcsolat a hirdetővel...
Családi házak rovaton belül a(z) "Eladó családi ház Mogyoród, Szadai út" című hirdetést látja. (fent)




























