
Józsa- Spar mögötti lakóparkban, új építésű, A+-os, 180 m2-e
Debrecen- Felsőózsa, Spar mögötti lakóparkban, 2026. év végi átadással, 180
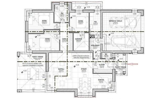
m2-es, nappali+ 3 szobás+ gardrób szobás (igény szerint nappali+ 4 szobás),
dupla komfortos, dupla garázsos (36 m2), önálló családi ház, 3 terasszal (36
m2), magas műszaki tartalommal, 750 m2-es telken eladó!Jellemzői:- A józsai Spar
mögötti, exklúziv lakóparkban, kiemelten értéktartó, csendes környéken
helyezkedik el- A telek 22 méter utcafronttal rendelkezik és 33 méter mélységű,
szabályos téglalap alakú- Összközműves: Víz, villany, csatorna, gáz- A ház új
építésű, a belső még igény szerint alakítható- Energetikai besorolás: A+-
Komfort fokozat: Dupla komfort- Porotherm® 30 N+F tégla falazat- Beton
tetőcserép- 15 cm Austrotherm® AT-H80 hőszigetelés a homlokzati falakon, mely
biztosítja az alacsony fűtési költséget- 30 cm Rockwool® Multirock hőszigetelés
a födémen- 10 cm Austrotherm® AT-N100 aljzatszigetelés- A fűtést az ingatlanba
egyedileg beépített, méretezett levegő-víz hőszivattyú biztosítja- Padlófűtés és
falfűtés kerül kialakításra, helyiségenként külön termosztát szabályzással- Hő-
és hangszigetelt ablakok kívül barna színben: 3 rétegű, 6 légkamrás, műanyag
profilrendszerű, horganyzott idomacél merevítéssel (0,6 W/m2K)- Garázsban
elektromos autó-töltő csatlakozás - Napelem előkészítés- HD felbontású kamera
rendszer előkészítés- Riasztórendszer előkészítés- Elektromos vezérelhető,
alumínium redőny előkészítés- Központi porszívó előkészítés- Inverteres,
hűtő-fűtő klíma az árban- 50 m2-es, amerikai konyhás nappali- 2 fürdőszoba-
Belső kialakítás flexibilis, az Ön elképzelése szerint alakítunk ki mindent-
Választható burkolatok: Kerámia burkolat 15 000 Ft/m2-ig, laminált parketta 6
000 Ft/m2-ig a vételárban- Távvezérlésű, motoros, Hörmann® szekcionált (LPU40),
hőszigetelt garázskapuval ellátott, két autónak helyt adó, 36,18 m2-es, dupla
garázs- Fedett teraszok (25 m2, 5 m2)- Nyitott terasz (6 m2)- Térkövezés szintén
a vételárban- Tömegközlekedés kiváló- Józsa Parkhoz, Sparhoz, iskolához,
óvodához, üzletekhez, orvosi rendelőhöz, patikához közel helyezkedik el!Igény
szerint füvesítés, parkosítás, öntözőrendszer, sziklakert, bográcsozási
lehetőség, pergolla, filagória kialakításra kerülhet a költözésre, illetve
szintén igénynek megfelelően az összes előkészített gépészeti és elektronikai
rendszer befejezett, használatra kész állapotban is kérhető, igy Önnek csak
költöznie kell!Rezsiátlag alatti az energiafogyasztása az ingatlannak, így az új
rezsiszabályozással is alacsony marad a fenntartási költsége!Babaváró,
illetékmentesség, Otthon Start 3 %-os hitel, CSOK+ igénybe vehető a házra!Nálunk
illetékmentes a vásárlás!Várható befejezés: 2026. December 31.Irányár: 193 MFt
m2-es, nappali+ 3 szobás+ gardrób szobás (igény szerint nappali+ 4 szobás),
dupla komfortos, dupla garázsos (36 m2), önálló családi ház, 3 terasszal (36
m2), magas műszaki tartalommal, 750 m2-es telken eladó!Jellemzői:- A józsai Spar
mögötti, exklúziv lakóparkban, kiemelten értéktartó, csendes környéken
helyezkedik el- A telek 22 méter utcafronttal rendelkezik és 33 méter mélységű,
szabályos téglalap alakú- Összközműves: Víz, villany, csatorna, gáz- A ház új
építésű, a belső még igény szerint alakítható- Energetikai besorolás: A+-
Komfort fokozat: Dupla komfort- Porotherm® 30 N+F tégla falazat- Beton
tetőcserép- 15 cm Austrotherm® AT-H80 hőszigetelés a homlokzati falakon, mely
biztosítja az alacsony fűtési költséget- 30 cm Rockwool® Multirock hőszigetelés
a födémen- 10 cm Austrotherm® AT-N100 aljzatszigetelés- A fűtést az ingatlanba
egyedileg beépített, méretezett levegő-víz hőszivattyú biztosítja- Padlófűtés és
falfűtés kerül kialakításra, helyiségenként külön termosztát szabályzással- Hő-
és hangszigetelt ablakok kívül barna színben: 3 rétegű, 6 légkamrás, műanyag
profilrendszerű, horganyzott idomacél merevítéssel (0,6 W/m2K)- Garázsban
elektromos autó-töltő csatlakozás - Napelem előkészítés- HD felbontású kamera
rendszer előkészítés- Riasztórendszer előkészítés- Elektromos vezérelhető,
alumínium redőny előkészítés- Központi porszívó előkészítés- Inverteres,
hűtő-fűtő klíma az árban- 50 m2-es, amerikai konyhás nappali- 2 fürdőszoba-
Belső kialakítás flexibilis, az Ön elképzelése szerint alakítunk ki mindent-
Választható burkolatok: Kerámia burkolat 15 000 Ft/m2-ig, laminált parketta 6
000 Ft/m2-ig a vételárban- Távvezérlésű, motoros, Hörmann® szekcionált (LPU40),
hőszigetelt garázskapuval ellátott, két autónak helyt adó, 36,18 m2-es, dupla
garázs- Fedett teraszok (25 m2, 5 m2)- Nyitott terasz (6 m2)- Térkövezés szintén
a vételárban- Tömegközlekedés kiváló- Józsa Parkhoz, Sparhoz, iskolához,
óvodához, üzletekhez, orvosi rendelőhöz, patikához közel helyezkedik el!Igény
szerint füvesítés, parkosítás, öntözőrendszer, sziklakert, bográcsozási
lehetőség, pergolla, filagória kialakításra kerülhet a költözésre, illetve
szintén igénynek megfelelően az összes előkészített gépészeti és elektronikai
rendszer befejezett, használatra kész állapotban is kérhető, igy Önnek csak
költöznie kell!Rezsiátlag alatti az energiafogyasztása az ingatlannak, így az új
rezsiszabályozással is alacsony marad a fenntartási költsége!Babaváró,
illetékmentesség, Otthon Start 3 %-os hitel, CSOK+ igénybe vehető a házra!Nálunk
illetékmentes a vásárlás!Várható befejezés: 2026. December 31.Irányár: 193 MFt
Részletek...
Adatlap
| Ár: | 193.000.000 Ft |
| Település: | Debrecen |
| A hirdető: | Ingatlaniroda ajánlatából |
| Értékesítés típusa: | Eladó |
| Használtság: | Új építésű |
| Épület hasznos területe (m2) : | 180.00 |
| Szobák száma: | 5 |
| Feladás dátuma: | 2026.04.18 |
| Eddig megtekintették 59 alkalommal | |
A hirdető adatai
Kapcsolat a hirdetővel...
Családi házak rovaton belül a(z) "Józsa- Spar mögötti lakóparkban, új építésű, A+-os, 180 m2-e" című hirdetést látja. (fent)




























