
Eladó családi ház Gödöllő, Eperjes utca
Eladásra kínálok Gödöllő kertvárosi részén egy önálló, felújított (2024.)
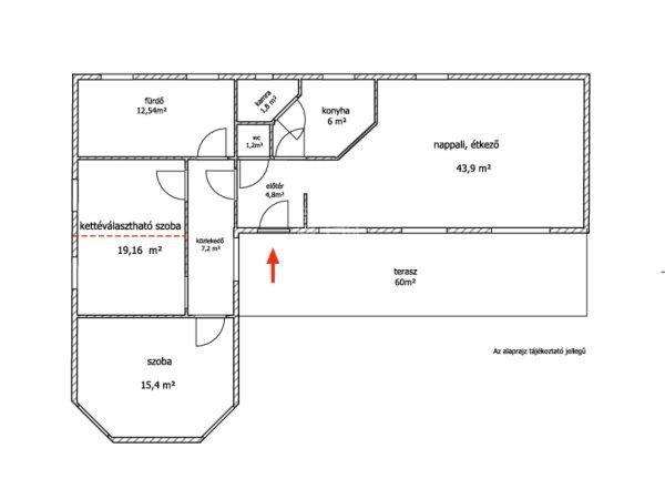
családi házat.Felosztása: amerikai konyhás nappali, 2 hálószoba, előtér, nagy
méretű fürdőszoba mosdóval, különálló mosdó, spájz.Mindezt 60 nm fedett terasz
szegélyezi.A házhoz 500 nm saját kert tartozik, az utcafront felől, előkerttel
helyezkedik el. Az eredeti nagy méretű telek hátsó részén, egy nyaktaggal
csatlakozó (ikresített) másik ház keül megépítésre, amely szintén önálló
udvarral fog rendelkezni. és 4 méter széleskocsibejáró a megvételre kínált ház
hátljánál fog húzódni, így biztosítva az intimitást.Falazata 30-as téglából
készült, amelyre 5cm dryvit került, az ablakok 3 rétegű favázas thermo üvegesek,
elektromos redőnyökkel felszereltek, tetőszerkezete agyag cseréppel fedett, a
födém szigetelve van.Felújítása során prémium minőségű burkolatok, új
nyílászárók, víz- és villanyvezetékek (+elosztódoboz) kerültek beépítésre. Az
alap- és a szerelőbeton újra lett öntve, az aljzatot pedig 12cm vastag
szigeteléssel, hőtükrös fóliával látták el. Falakat újra glettelték, festették
és a helyiségek beépített gipszkarton állmennyezetet is kaptak LED
világítással.Fűtés: gázkazánMelegvíz ellátás: villanybojler 120 l
nagyságú.Extrák:- kamerarendszer- riasztó- 4 db klíma (2*6 és 2*3,5 kw)-
gondozásmentes alumínium kerítés, elektromos kapuval.- locsolórendszer.Mind
autóval, mind gyalog kivló közlekedéssel bír.Közelben bolt, iskola, óvoda,
parkok, és minden, ami a mindennapi életvitelhez szükséges!Birtokbavétel rövid
határidővel!Tekintsük meg együtt! ...TOVÁBBI, TÖBBEZRES INGATLAN KÍNÁLAT:
www.gdn-ingatlan.hu - GDN azonosító: 391628
családi házat.Felosztása: amerikai konyhás nappali, 2 hálószoba, előtér, nagy
méretű fürdőszoba mosdóval, különálló mosdó, spájz.Mindezt 60 nm fedett terasz
szegélyezi.A házhoz 500 nm saját kert tartozik, az utcafront felől, előkerttel
helyezkedik el. Az eredeti nagy méretű telek hátsó részén, egy nyaktaggal
csatlakozó (ikresített) másik ház keül megépítésre, amely szintén önálló
udvarral fog rendelkezni. és 4 méter széleskocsibejáró a megvételre kínált ház
hátljánál fog húzódni, így biztosítva az intimitást.Falazata 30-as téglából
készült, amelyre 5cm dryvit került, az ablakok 3 rétegű favázas thermo üvegesek,
elektromos redőnyökkel felszereltek, tetőszerkezete agyag cseréppel fedett, a
födém szigetelve van.Felújítása során prémium minőségű burkolatok, új
nyílászárók, víz- és villanyvezetékek (+elosztódoboz) kerültek beépítésre. Az
alap- és a szerelőbeton újra lett öntve, az aljzatot pedig 12cm vastag
szigeteléssel, hőtükrös fóliával látták el. Falakat újra glettelték, festették
és a helyiségek beépített gipszkarton állmennyezetet is kaptak LED
világítással.Fűtés: gázkazánMelegvíz ellátás: villanybojler 120 l
nagyságú.Extrák:- kamerarendszer- riasztó- 4 db klíma (2*6 és 2*3,5 kw)-
gondozásmentes alumínium kerítés, elektromos kapuval.- locsolórendszer.Mind
autóval, mind gyalog kivló közlekedéssel bír.Közelben bolt, iskola, óvoda,
parkok, és minden, ami a mindennapi életvitelhez szükséges!Birtokbavétel rövid
határidővel!Tekintsük meg együtt! ...TOVÁBBI, TÖBBEZRES INGATLAN KÍNÁLAT:
www.gdn-ingatlan.hu - GDN azonosító: 391628
Részletek...
Adatlap
| Ár: | 116.900.000 Ft |
| Település: | Gödöllő |
| A hirdető: | Ingatlaniroda ajánlatából |
| Értékesítés típusa: | Eladó |
| Használtság: | Használt |
| Utca: | Eperjes utca |
| Telek nagysága (m2) : | 500 |
| Épület hasznos területe (m2) : | 160 |
| Szobák száma: | 3 |
| Fűtés: | Cirkó fűtéses |
| Ingatlan állapota: | Felújított |
| Anyaga: | Tégla |
| A hirdető kérése: | Ingatlanközvetítő vagyok - keresse fel Irodánkat! |
| Feladás dátuma: | 2026.03.20 |
| Eddig megtekintették 25 alkalommal | |
A hirdető adatai
Kapcsolat a hirdetővel...
Családi házak rovaton belül a(z) "Eladó családi ház Gödöllő, Eperjes utca" című hirdetést látja. (fent)




























