
4644: Új építésű, földszintes, dupla-komfortos, családi ház
Kedves Érdeklődő! Új építésű, földszintes, dupla-komfortos, családi ház
eladó Gödön!CÉGES ÉPÍTKEZÉS, a 2024-től aktuális állami támogatások valamint
kedvezményes, kamattámogatott hitelek felvehetőek ? akár a 3%-os OTTHON START
hitel, CSOK PLUS, babaváró is igényelhető, az ügyintézésben díjmentesen
segítünk!Az építő munkájára jellemző a megbízhatóság és igényesség,
leinformálható, referencia házai megtekinthetők.Göd, Neveleki részén 672 nm-es
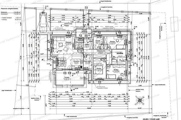
telekre épülő, amerikai konyhás nappali + 4 szobás elrendezésű, DUPLA-KOMFORTOS,
FÖLDSZINTES, 133 nm alapterületű, ebből a lakótér 112,56 nm + terasz + fedett
belépő, családi ház eladó.Az ingatlan 30-as PTH téglából épül, beton födémmel,
15 cm-es, grafitos homlokzati hőszigeteléssel.A tető Bramac beton cseréppel lesz
fedett.Műanyag szerkezetű, 3 rétegű hőszigetelő üvegezéssel ellátott nyílászárók
kerülnek beépítésre, fehér színben, elektromos, alumínium redőnyökkel
felszerelve.Fűtésről és használati meleg vízellátásról 10 kw-os hőszivattyú fog
gondoskodni, valamint magas oldalfali fan-coilok előcsövezése hűtéshez-fűtéshez
is megtörténik. A hő leadás az egész lakótérben padlófűtéssel történik. H
tarifás villanyórával kerülnek átadásra a lakások.Belső ajtók, burkolatok
választhatók, a belső műszaki tartalomban megjelölt összegig a vételár részét
képezik. Választható tételek: szaniterek br. 600.000.- Ft, hidegburkolat br.
10.000 Ft/ nm, meleg burkolat (vynil) br. 8500 Ft/ nm, beltéri ajtók br. 100.000
Ft/db kilinccsel együtt.Az ingatlan kulcsrakész állapotban kerül átadásra,
konyhabútor nélkül.Parkolás térkövezett udvari beállón lesz megoldott.Köszönjük,
hogy megtisztel bizalmával, és irodánkat választja új otthona kiválasztására.
Tapasztalt és felkészült kollégáink segítenek Önnek akár a hétvégén is.Ha
esetleg még nem sikerült eladni ingatlanát, kedvezményes feltételekkel vállaljuk
annak értékesítését! A berendezett kép csak egy látványterv, hogy könnyebb
legyen elképzelni a tér lehetőségeit ? az ingatlan a valóságban
bútorozatlan.Ára: 149.900.000.- FtAzonosító: 4644
eladó Gödön!CÉGES ÉPÍTKEZÉS, a 2024-től aktuális állami támogatások valamint
kedvezményes, kamattámogatott hitelek felvehetőek ? akár a 3%-os OTTHON START
hitel, CSOK PLUS, babaváró is igényelhető, az ügyintézésben díjmentesen
segítünk!Az építő munkájára jellemző a megbízhatóság és igényesség,
leinformálható, referencia házai megtekinthetők.Göd, Neveleki részén 672 nm-es
telekre épülő, amerikai konyhás nappali + 4 szobás elrendezésű, DUPLA-KOMFORTOS,
FÖLDSZINTES, 133 nm alapterületű, ebből a lakótér 112,56 nm + terasz + fedett
belépő, családi ház eladó.Az ingatlan 30-as PTH téglából épül, beton födémmel,
15 cm-es, grafitos homlokzati hőszigeteléssel.A tető Bramac beton cseréppel lesz
fedett.Műanyag szerkezetű, 3 rétegű hőszigetelő üvegezéssel ellátott nyílászárók
kerülnek beépítésre, fehér színben, elektromos, alumínium redőnyökkel
felszerelve.Fűtésről és használati meleg vízellátásról 10 kw-os hőszivattyú fog
gondoskodni, valamint magas oldalfali fan-coilok előcsövezése hűtéshez-fűtéshez
is megtörténik. A hő leadás az egész lakótérben padlófűtéssel történik. H
tarifás villanyórával kerülnek átadásra a lakások.Belső ajtók, burkolatok
választhatók, a belső műszaki tartalomban megjelölt összegig a vételár részét
képezik. Választható tételek: szaniterek br. 600.000.- Ft, hidegburkolat br.
10.000 Ft/ nm, meleg burkolat (vynil) br. 8500 Ft/ nm, beltéri ajtók br. 100.000
Ft/db kilinccsel együtt.Az ingatlan kulcsrakész állapotban kerül átadásra,
konyhabútor nélkül.Parkolás térkövezett udvari beállón lesz megoldott.Köszönjük,
hogy megtisztel bizalmával, és irodánkat választja új otthona kiválasztására.
Tapasztalt és felkészült kollégáink segítenek Önnek akár a hétvégén is.Ha
esetleg még nem sikerült eladni ingatlanát, kedvezményes feltételekkel vállaljuk
annak értékesítését! A berendezett kép csak egy látványterv, hogy könnyebb
legyen elképzelni a tér lehetőségeit ? az ingatlan a valóságban
bútorozatlan.Ára: 149.900.000.- FtAzonosító: 4644
Részletek...
Adatlap
| Ár: | 149.900.000 Ft |
| Település: | Göd |
| A hirdető: | Ingatlaniroda ajánlatából |
| Értékesítés típusa: | Eladó |
| Telek nagysága (m2) : | 672 |
| Épület hasznos területe (m2) : | 123 |
| Szobák száma: | 5 |
| Komfort: | Duplakomfortos |
| Ingatlan állapota: | Normál állapotú |
| Anyaga: | Tégla |
| A hirdető kérése: | Ingatlanközvetítő vagyok - keresse fel Irodánkat! |
| Feladás dátuma: | 2026.03.20 |
| Eddig megtekintették 22 alkalommal | |
A hirdető adatai
Kapcsolat a hirdetővel...
Családi házak rovaton belül a(z) "4644: Új építésű, földszintes, dupla-komfortos, családi ház " című hirdetést látja. (fent)




























